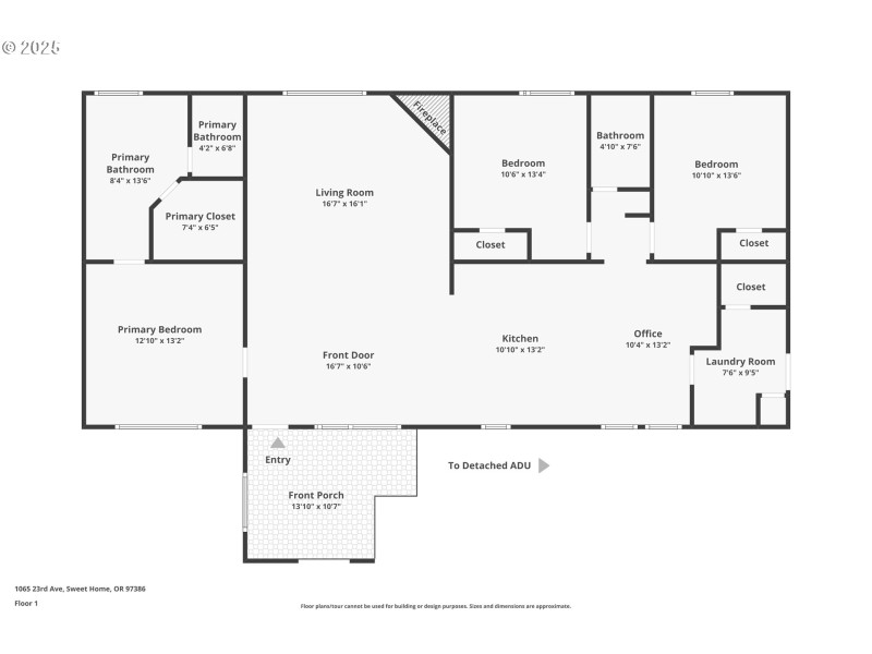
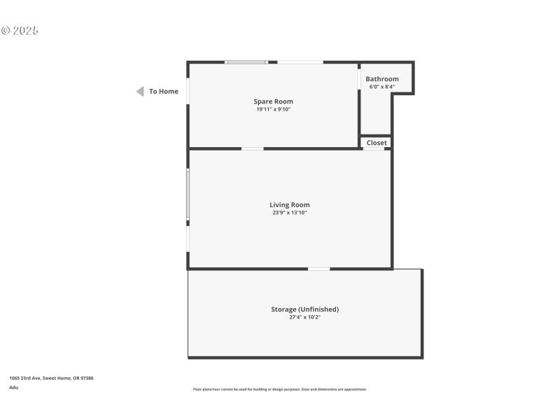
Wait no further! Wonderful single level 3 bedroom/2 bath home. Kitchen has frig, DW and panty for lots of storage. Open floor plan. New in last 2 years: roof, AC, 14 x 24 covered deck, and exterior paint. Large primary bedroom with WIC, step-in shower, soaker tub, and double sinks. Huge lot with private backyard. Garage partially converted to ADU with LR, bedroom and half bath. Boat/ATV storage. ADU will be professionally painted prior to close. Quiet street. Come make this your home today.
Hwy 20 East, R - 23rd
Dwelling Type: Residential
Subdivision: N/A
Year Built: 2002, County: US
Hwy 20 East, R - 23rd
Listing is courtesy of Knipe Realty ERA Powered