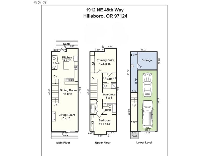
Move-In Ready. Enjoy the convenience of a full driveway parking space + a spacious 2-car garage complete with an impressive 207 sq ft storage room — perfect for seasonal items, hobbies, or extra organization. Beautifully appointed 2-bedroom + Office townhouse featuring dual private bathroom suites — perfect for comfort and privacy. Office room could work as a workout room, additional bedroom (no closet) or nursery. The main living area showcases rich bamboo flooring and a cozy fireplace, creating a warm and inviting atmosphere. The kitchen is designed to impress with granite countertops, stainless steel appliances, and a charming nook that opens to its own private balcony. An additional balcony off the living room extends your entertaining space outdoors. Ideally located near Costco and local shopping, dining, and everyday conveniences. Recent updates including a brand-new roof and gutters in summer 2024 and fresh exterior paint in 2023. Home has been professionally preinspected for HOME/RADON/SEWER/HES(9/10) for a smooth transaction. [Home Energy Score = 9. HES Report at https://rpt.greenbuildingregistry.com/hes/OR10244243]
NE Brookwood Parkway, east on NE Airport RD, Left on 48th Way
Dwelling Type: Residential
Subdivision: CPO 9 HILLSBORO/ORENCO (Traver
Year Built: 2007, County: US
NE Brookwood Parkway, east on NE Airport RD, Left on 48th Way
Listing is courtesy of Knipe Realty ERA Powered
Sign in to your account to continue