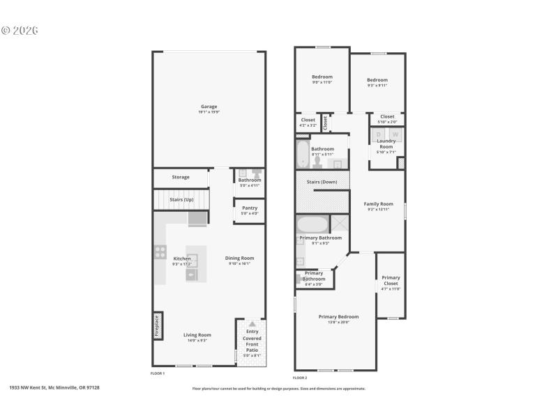
Welcome to this thoughtfully designed, meticulously maintained home in the desirable Baker Creek North community of McMinnville—with a versatile floorplan for any lifestyle including a great work-from-home space. Set in the heart of Oregon wine country, you’re minutes from charming downtown McMinnville, renowned vineyards, major education and employment centers, including Linfield University, Chemeketa Community College, and George Fox University, with easy access to coastal destinations for weekend escapes.Inside, soaring ceilings and an open-concept layout create a bright, inviting atmosphere with laminate flooring and a cozy gas fireplace anchoring the main living space. The kitchen is both stylish and functional, featuring stainless steel appliances, a built-in oven and range, pantry, and a generous island ideal for meals, entertaining, and everyday living.Upstairs, a spacious loft offers exceptional flexibility—perfect as a home office, family room, play space, creative studio, or calming retreat. The primary suite provides a relaxing escape with a walk-in closet and spa-inspired ensuite featuring double sinks, a soaking tub, and a walk-in shower. Additional bedrooms are well-suited for children’s bedrooms, guest rooms, or versatile use for study or hobbies, making this home especially appealing for both professionals and growing households.Enjoy year-round comfort with forced-air gas heating, central air conditioning, and a tankless water heater. The attached two-car garage includes a smart LiftMaster opener system with integrated video/audio features and secure delivery compatibility. High-speed fiber internet is available for modern connected living. Outside, the fenced yard with sprinklers and low-maintenance landscaping offers space for kids, pets, and outdoor enjoyment. Move-in ready and vacant for quick possession—an excellent opportunity in one of McMinnville’s most sought-after neighborhoods.
GPS
Dwelling Type: Residential
Subdivision: N/A
Year Built: 2023, County: US
GPS
Listing is courtesy of Redfin
Sign in to your account to continue