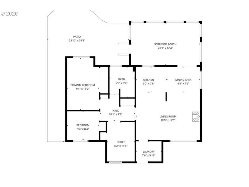
Paradise found! Own your own mini farm near the Loon Lake Recreation Area. Cozy 2 bedroom, 1 bath cabin with option to turn office into a third bedroom. Open kitchen/dining/living room concept. Large enclosed deck is 20'x12' and not included in the sq. footage. Views of Lake Creek and pasture make it a perfect spot for bird and wildlife watching and no light pollution for star gazers! Fertile pastures for growing all of your food. Tons of fishing and hunting opportunities. Storage building for wood, mower, ATV, tools etc.
Highway 38 to Loon Lake Rd., approx 14 miles to address.
Dwelling Type: Residential
Subdivision: N/A
Year Built: 1935, County: US
Highway 38 to Loon Lake Rd., approx 14 miles to address.
Listing is courtesy of Mal & Seitz Real Estate
Sign in to your account to continue