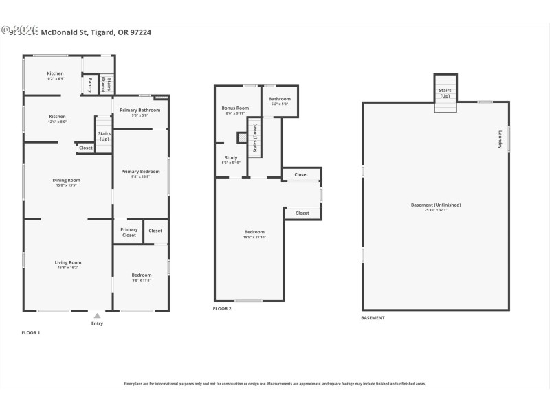
Charming 1915 Bungalow in Tigard, OR – Garden Oasis with Development Potential! Discover the timeless appeal of this 3 bedroom, 2 bath bungalow on an expansive .36-acre lot. This home features original details, hardwood floors in the living and dining rooms, and a warm, inviting atmosphere. The primary suite is on the main level with a walk-in closet, plus an additional main-floor bedroom. Upstairs offers a third bedroom, office space, bonus room, and full bath. A partial basement provides a utility area and extra storage (seasonal water seepage; sump pump in basement). Outdoors, the .36-acre park-like setting is a gardener’s dream with raised beds, a covered patio (option to be a greenhouse) and a tool shed. Ample parking includes room for multiple vehicles, a small RV/boat. Home is zoned Res B & may have possibility for development (buyer to perform all due diligence with the city of Tigard). Future street improvements planned for McDonald St. Enjoy easy access to local amenities, parks, schools and transportation in this vibrant Tigard community. Schedule your showing today and explore the possibilities.
99W, S on McDonald. Park in the driveway on 100th St
Dwelling Type: Residential
Subdivision: N/A
Year Built: 1915, County: US
99W, S on McDonald. Park in the driveway on 100th St
Listing is courtesy of Berkshire Hathaway HomeServices NW Real Estate
Sign in to your account to continue