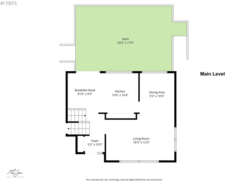
Set among the trees in Eugene’s southwest hills, this comfortable tri-level home offers space, warmth, and potential. The main level features a chic wood accent wall that adds character to the large living and dining area, perfect for gatherings large or small. The kitchen includes slab quartz counters, updated stainless steel appliances, and a casual eating area with a slider to the spacious deck—great for relaxing or entertaining outdoors. Downstairs, a cozy family room with a wood stove creates a welcoming spot to unwind, especially during cooler days. The primary bedroom includes its own full bath, and practical updates like mostly updated vinyl windows, a ductless heat pump, and a 50-year roof (installed just a few years ago) provide a solid start for someone ready to make this home their own. Surrounded by nature, this home offers a peaceful setting with room to add your own touch and style.
Bailey Hill to Timberline (R) on Warren
Dwelling Type: Residential
Subdivision: N/A
Year Built: 1977, County: US
Bailey Hill to Timberline (R) on Warren
Listing is courtesy of Triple Oaks Realty LLC