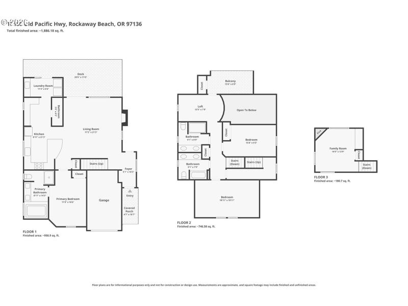
Income-ready and exceptionally located, this custom-built 4-bedroom, 4-bathroom coastal home located outside the FEMA-designated flood zone—a rare and highly desirable coastal advantage—offered with a transferable short-term rental permit for immediate income potential and partially furnished for a seamless transition. Ideally positioned just one block from the beach and bordering the coveted Pine Beach Loop neighborhood, the property includes deeded access to a beautifully maintained private beach trail, all without HOA dues or restrictions.From the moment you enter, the home opens dramatically with a stunning wall of clerestory windows in the living room, filling the space with natural light and capturing the coastal atmosphere. Warm cherry hardwood floors, a welcoming propane fireplace, and generous living spaces create a warm yet expansive main gathering area.The kitchen blends craftsmanship and function with custom maple cabinetry, granite surfaces, quality appliances, a propane cooktop, and a secondary prep/cleaning station—ideal for coastal living and entertaining.The main-level primary suite offers a peaceful retreat with a spacious en suite bath featuring a walk-in shower and oversized jetted tub. Upstairs, additional bedrooms, two full bathrooms, and a flexible sitting area open to covered decks and outdoor living spaces. At the top, a private crow’s nest bedroom captures ocean views and provides a quiet, elevated escape.Outdoor living is enhanced by expansive updated composite decking and hot/cold water already in place for a future outdoor shower or hot tub. With central A/C, on-demand hot water, and quality construction throughout, the home balances comfort, durability, and long-term flexibility.A rare North Coast offering combining architectural character, privacy, and strong income potential in one of Rockaway Beach’s most desirable coastal settings.
Hwy 101 south of Rockaway Beach - West on Old Pacific Highway
Dwelling Type: Residential
Subdivision: N/A
Year Built: 2008, County: US
Hwy 101 south of Rockaway Beach - West on Old Pacific Highway
Listing is courtesy of Sand + Cedar Realty
Sign in to your account to continue