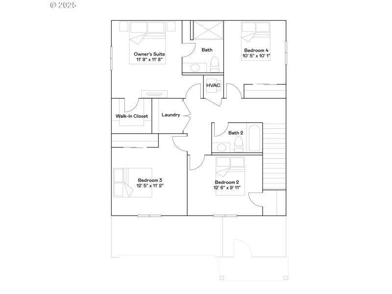
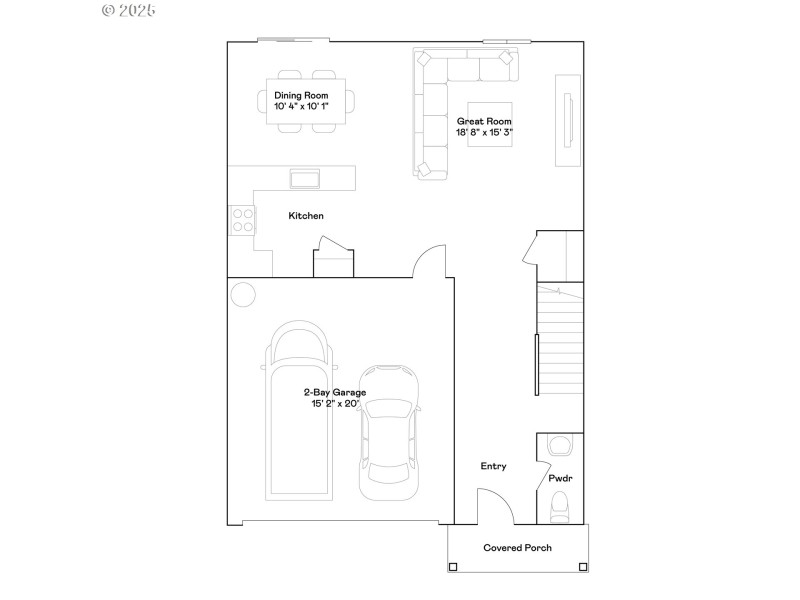
This MOVE-IN READY Dorothy floorplan offers comfort, style, and high-quality construction with durable James Hardie® cement-fiber siding, all in the charming community of Veneta. Just 15 miles from Eugene, the community offers wine country charm, year-round recreation, and the annual Oregon Country Fair. After being greeted by a welcoming covered front porch, you’ll step inside to an inviting open layout where the expansive great room, pre-wired for both a ceiling fan and TV, flows seamlessly into the formal dining room and stylish kitchen. Recessed lighting pairs with natural sunlight from oversized windows and a sliding glass door, creating a bright, airy atmosphere that extends to the backyard. Outside, a large irrigated lawn and fully fenced yard offer the perfect setting for outdoor entertaining, quiet relaxation, or a safe space for pets to roam. The kitchen showcases elegant quartz countertops on all surfaces, stainless steel appliances, and a walk-in pantry for extra storage. A convenient coat closet sits near the entry, along with a thoughtfully placed powder bath on the main level. Upstairs, four bedrooms provide plenty of space, including a private primary suite tucked into the back corner with a walk-in closet and en-suite bathroom. The Everything’s Included® package adds AC, a refrigerator, blinds, and a washer and dryer, at no extra cost! Homesite #4.
West on OR 126, R on Cornerstone, L on Jeans, R on Hope: 25235 Todd Way, Veneta
Dwelling Type: Residential
Subdivision: OAKLEY ESTATES
Year Built: 2025, County: US
West on OR 126, R on Cornerstone, L on Jeans, R on Hope: 25235 Todd Way, Veneta
Listing is courtesy of Lennar Sales Corp