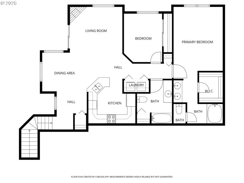
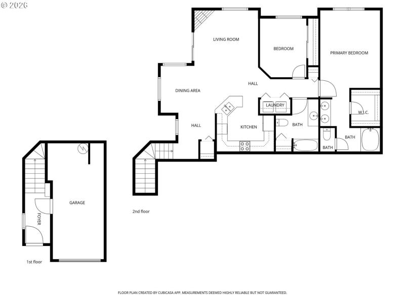
Corner upper-level unit with high ceilings throughout and an open floor plan. The living area features large floor-to-ceiling windows that provides an abundance of natural light, along with a gas fireplace - creating the perfect setting for NW living. Other amenities includes an eating bar and washer/dryer hookups are available, along with a large open deck. The primary bedroom hallmarks a walk-in closet, and the home is equipped with air conditioning for year-round comfort. An attached single-car garage with extra depth provides additional storage space. Located in a clean, quiet community near Progress Ridge shopping, dining, and the lake, this property offers convenient access to everyday amenities. This is a must see!!
Barrows Rd to Horizon Blvd to Sandhill Lp
Dwelling Type: Residential
Subdivision: PROGRESS RIDGE
Year Built: 2005, County: US
Barrows Rd to Horizon Blvd to Sandhill Lp
Listing is courtesy of Premiere Property Group, LLC
Sign in to your account to continue