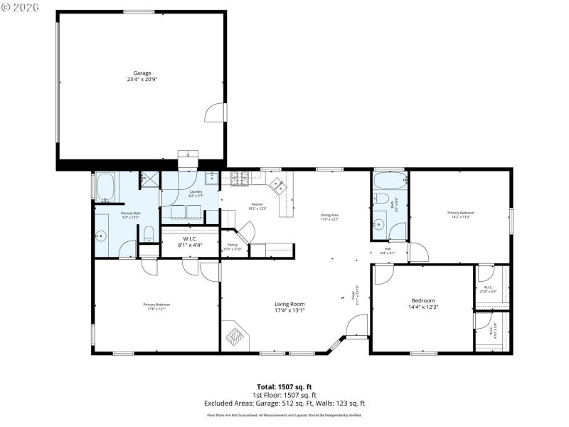
Room to breathe and space to live — this 1,680 sq. ft. three-bedroom, two-bath home on 5 peaceful acres outside Eugene offers the elbow room you've been looking for. Thoughtfully refreshed inside and out, the home features new exterior and interior paint and new floor coverings throughout, giving it a clean, move-in-ready feel. All three bedrooms include walk-in closets, and the primary suite offers the added comfort of an attached en suite bath. The newer roof adds confidence for years ahead. An attached two-car garage provides everyday convenience, while the covered front porch is the perfect place to settle in and take in the quiet valley views that stretch out before you. With acreage between you and your nearest neighbor, this is country living done right — private, serene, and surprisingly close to everything Eugene has to offer. Whether you're looking to spread out, garden, or simply enjoy the calm of rural Oregon, 86313 Sanford Road delivers. Come see it for yourself.
S on Bailey Hill, W on Gimpl Hill, N on Sanford to property
Dwelling Type: Residential
Subdivision: N/A
Year Built: 1991, County: US
S on Bailey Hill, W on Gimpl Hill, N on Sanford to property
Listing is courtesy of Real Broker
Sign in to your account to continue