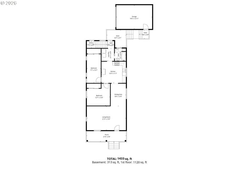
Discover University Park's sweetest bungalow, where 1900s farmhouse charm meets contemporary convenience. Summer plans are set with a front porch perfect for sweet tea and cribbage games. Inside, warm hardwood floors and tall ceilings welcome you in to enjoy easy one-level living. Two comfortable bedrooms, a bright living room, full bath, laundry and an updated kitchen complete the main level. Downstairs the basement bedroom with en suite full bath offers direct access to the backyard - ideal for exploring ADU possibilities, a space for guests, or extended living. Recreation awaits out back with a fire pit, dog run, raised deck and patio. The detached garage is easily accessed via alley or newly installed pedestrian door all within the fully fenced back yard. Blocks to University of Portland, New Seasons Market and some of Lombard's best retail and dining. Bike score 89! [Home Energy Score = 6. HES Report at https://rpt.greenbuildingregistry.com/hes/OR10202420]
McKenna/Lombard
Dwelling Type: Residential
Subdivision: UNIVERSITY PARK
Year Built: 1900, County: US
McKenna/Lombard
Listing is courtesy of Urban Nest Realty
Sign in to your account to continue