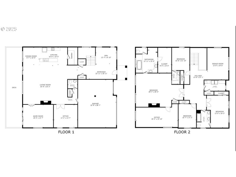
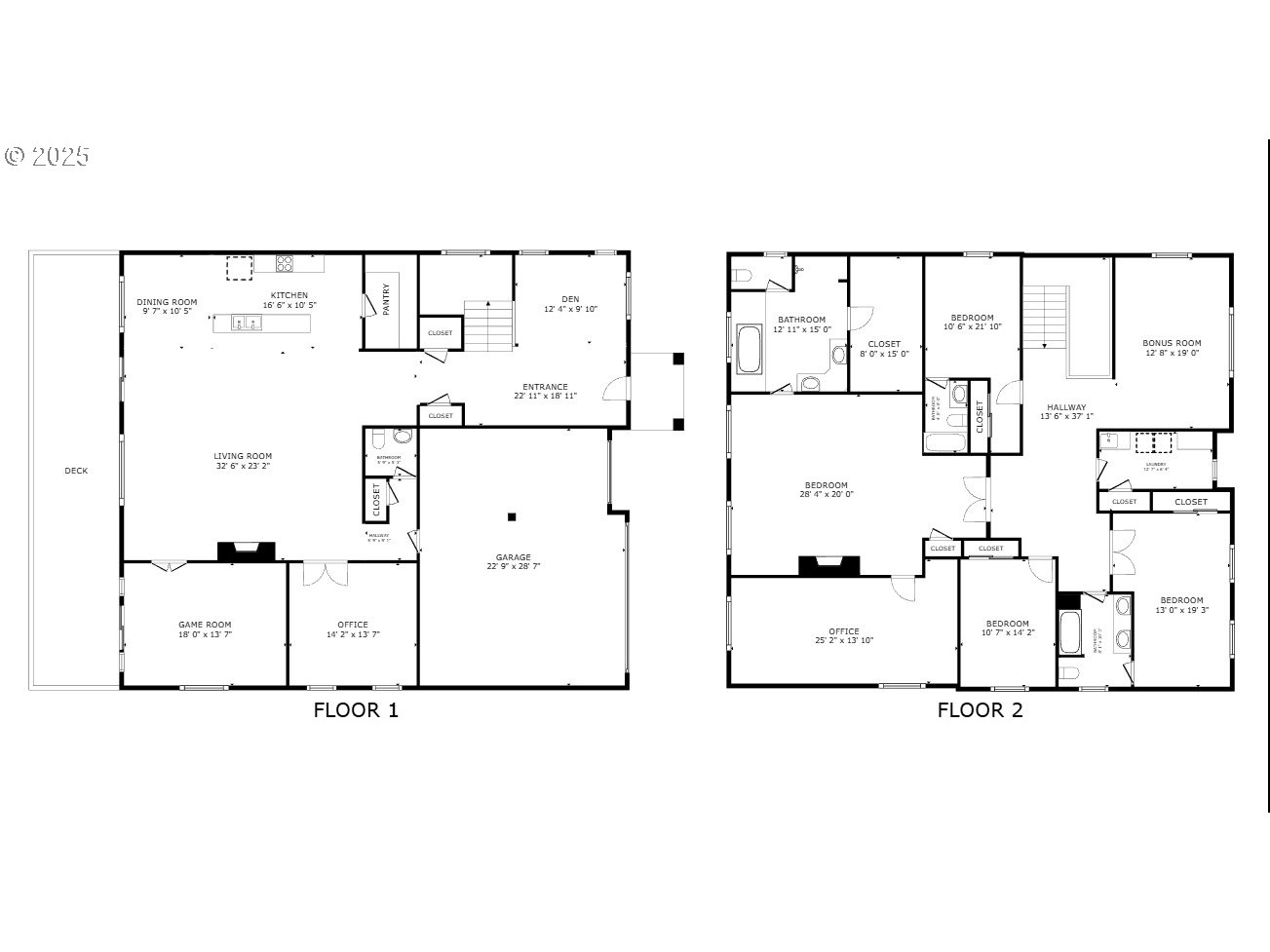
Perched above the valley with sweeping territorial views, this custom-built home offers space, flexibility, and timeless style in sought-after Jackson Hills. The grand two-story layout features dual gas fireplaces, a spacious great room, and a chef’s kitchen with island, pantry, and built-in stainless appliances. Upstairs, the oversized primary suite includes a sitting area, fireplace, and soaking tub—plus three additional bedrooms, each with bath access and walk-in closets.A main-level bonus room provides the perfect setup for multigenerational living, guest quarters, or a fifth bedroom option. Enjoy panoramic hillside views from the expansive upper deck—an entertainer’s dream and the perfect spot for morning coffee or evening sunsets.Set within one of Happy Valley’s premier neighborhoods known for its luxury custom homes, top-rated schools, and tree-lined streets, this property offers instant equity and incredible value for the quality and size. Three-car garage and thoughtful design throughout complete this exceptional find.
Sunnyside, N 122nd, E King, N 145th, R Denali, R Spanish Bay Dr
Dwelling Type: Residential
Subdivision: JACKSON HILLS
Year Built: 2006, County: US
Sunnyside, N 122nd, E King, N 145th, R Denali, R Spanish Bay Dr
Listing is courtesy of Modern Realty