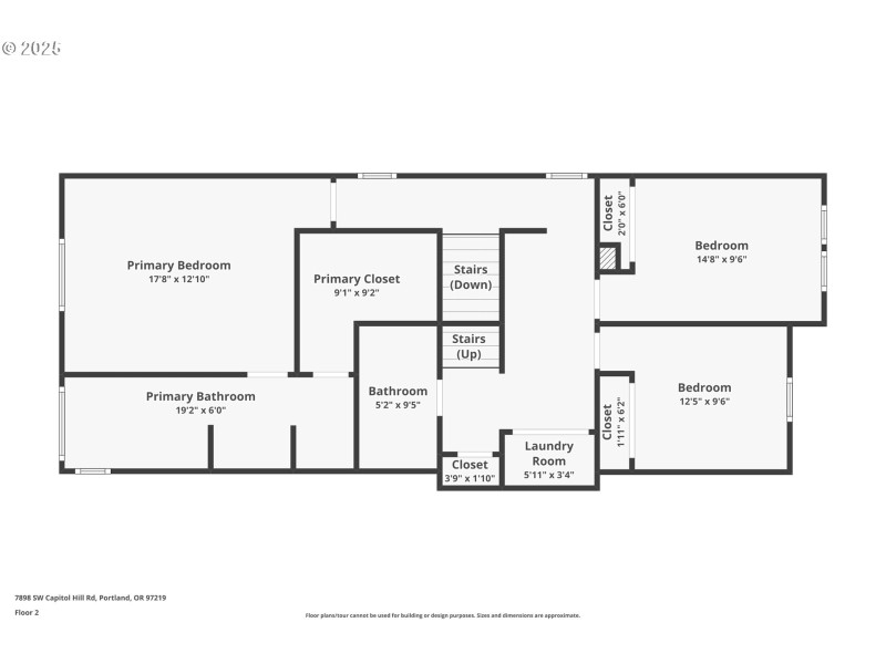
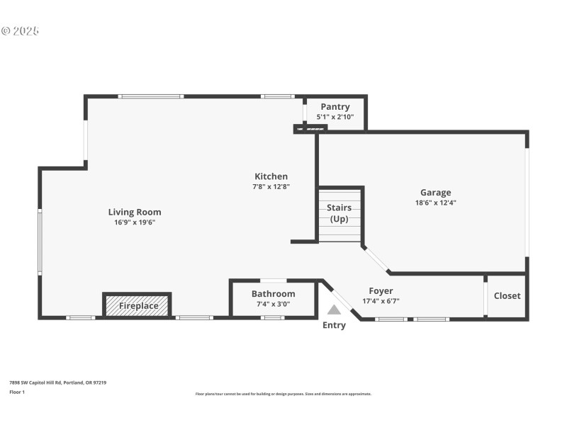
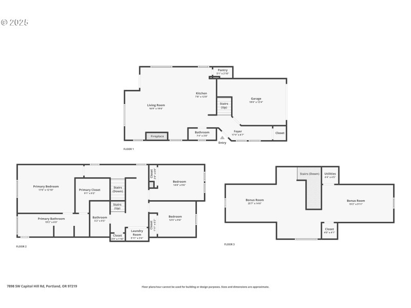
OPEN HOUSE SAT. 11/29 2:00pm-4:00pm! Beautiful DETACHED condo in the sought after Multnomah Village/Hillsdale area. Great location for all the amenities including restaurants, shops, and top rated schools, plus a quick commute to downtown. Enjoy central air conditioning in the summer and a cozy gas fireplace in the winter. With a private fenced backyard and an attached garage with opener, this home is move-in ready. There is an outstanding primary suite, with a huge walk-in closet, double sinks, a soak tub, and a separate shower. There are two additional bedrooms, and a huge bonus room upstairs. The kitchen has a large island, quartz countertops, a gas range/oven, newer dishwasher, and the refrigerator with ice maker is included. The open floorplan has high ceilings on the first two levels. This townhouse style craftsman is timeless and modern with all the upgrades. There's even a peak-a-boo Mt. Hood view in the upstairs bonus room. This newer build condo has the best of both worlds; a small private low cost HOA and a unique setting that feels miles away. Hurry home! [Home Energy Score = 4. HES Report at https://rpt.greenbuildingregistry.com/hes/OR10239454]
SW Barbur Blvd or SW Birtha to SW Capitol Hill Rd (top of the driveway)
Dwelling Type: Residential
Subdivision: MULTNOMAH VILLAGE
Year Built: 2017, County: US
SW Barbur Blvd or SW Birtha to SW Capitol Hill Rd (top of the driveway)
Listing is courtesy of Premiere Property Group, LLC