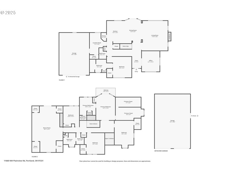
Discover the best of both worlds at 11660 NW Plainview Rd — a peaceful country retreat just outside the metro yet a quick 20 minutes from downtown Portland. Custom built in 2007 and lovingly maintained by its original owners, this spacious 5-bedroom, 3.5-bath home with office and bonus room offers over 4,200 sq. ft. of versatile living. The heart of the home features gleaming Brazilian cherry floors, a gourmet kitchen with granite countertops and stainless appliances, and bright gathering spaces framed by sweeping views of the Tualatin Valley. With two primary suites (one on each level), a main-floor office, and an upstairs bonus room with a kitchenette/Bar and balcony, the layout perfectly suits modern living, multi-gen families, or guests.Outside, enjoy 1.17 acres of open space, a long paved driveway with ample parking, a huge shop ideal for RVs, boats, or creative projects, and room to garden or play. Oversized, attached 2 car garage AND large 24'x36' 2 car+ outbuilding. Lots of extra storage inside the home including a huge flex space off the upper primary bedroom-could be an office, nursery, hobby room, etc. Located in unincorporated Multnomah County with top-rated PPS schools (Skyline K–8, West Sylvan, Lincoln). Minutes to Bethany Village, PCC Rock Creek, Forest Park, and the tech corridor — this is the Northwest lifestyle at its best: open skies, beautiful sunsets, and everyday convenience.
HWY 26, North on Cornelius Pass Road, Left on Plainview Road
Dwelling Type: Residential
Subdivision: N/A
Year Built: 2007, County: US
HWY 26, North on Cornelius Pass Road, Left on Plainview Road
Listing is courtesy of The Agency Portland