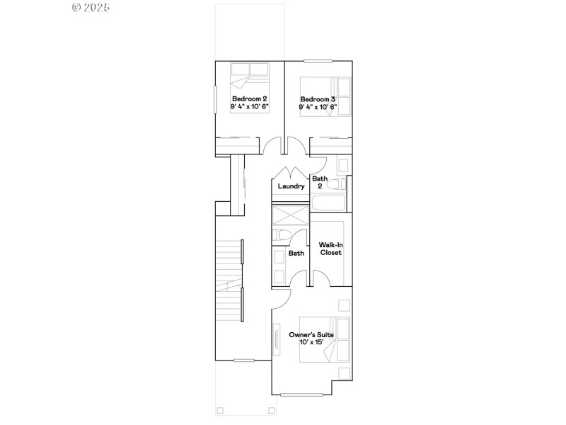
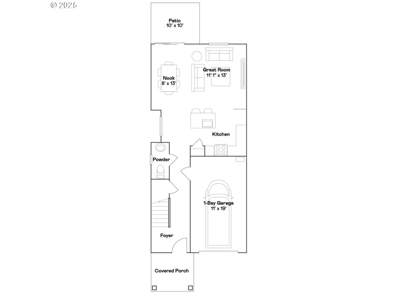
This new construction duplex is part of South River Terrace, a connected community offering excellent schools, freeway access, and proximity to shops, dining, golf, and onsite parks, playgrounds, and sport courts. The plan features a low-maintenance layout with the kitchen flowing into the great room and dining area, plus sliding doors to a patio that extends living outdoors to the fenced and landscaped yard. Upstairs are three bedrooms, including a spacious primary suite with a private bath and walk-in closet, while the top floor includes a versatile bonus room ideal for a media room, office, or play area. Interior finishes include quartz countertops, LVP flooring, and modern details throughout. This home also includes central air conditioning, a refrigerator, washer and dryer, and blinds—all at no extra cost! Located on homesite 9, this home is expected to be complete in April. Rendering is artist conception only. Photos are of a similar home, features and finishes will vary.
Take Ext 4B off OR-217, W on SW Scholls Ferry Rd to SW 165th Ave to Lennar Homes.
Dwelling Type: Residential
Subdivision: N/A
Year Built: 2026, County: US
Take Ext 4B off OR-217, W on SW Scholls Ferry Rd to SW 165th Ave to Lennar Homes.
Listing is courtesy of Lennar Sales Corp
Sign in to your account to continue