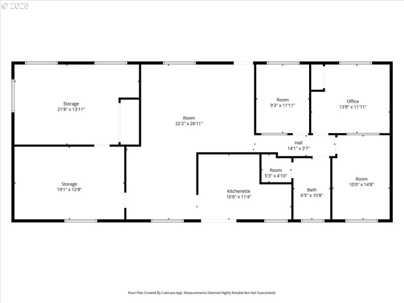
Location is truly everything for your business! With excellent access to Mill Pain Blvd. and I-205, this great commercial space cannot be overlooked. Building has a main area, three formal offices, kitchen, and two additional spaces ideal for workshops, additional offices/conference rooms, or storage.
GPS friendly. From 1-205: East on Mill Plain Blvd. North on 112th Ave. Building on left just past 9t
Dwelling Type: CommercialSale
Subdivision: N/A
Year Built: 1970, County: US
GPS friendly. From 1-205: East on Mill Plain Blvd. North on 112th Ave. Building on left just past 9t
Listing is courtesy of eXp Realty LLC
Sign in to your account to continue