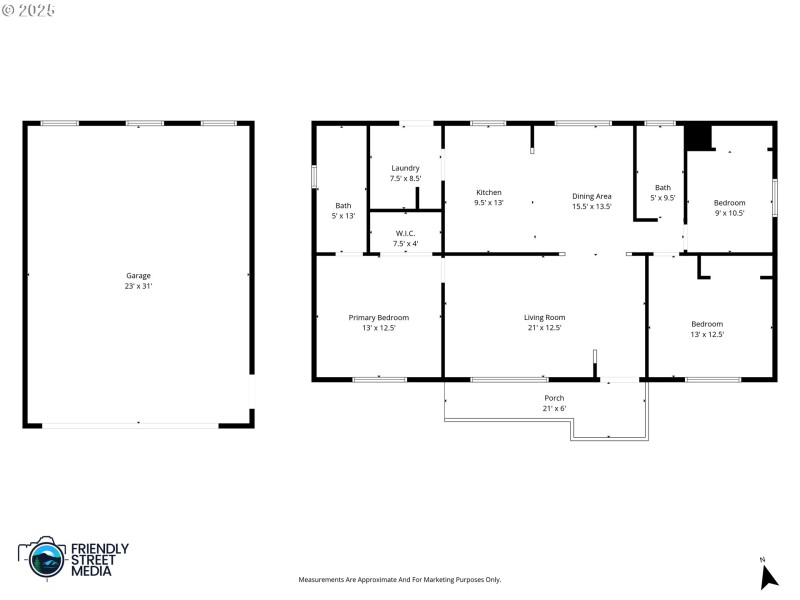
*New Price* Start the new year with space, flexibility, and opportunity at 1672 Pritchett Pl.Located in Cottage Grove with an easy drive to Eugene, this move-in-ready manufactured home sits on its own land—offering ownership, independence, and room to grow. Whether you're purchasing your first home, simplifying into something more manageable, or looking for a property with serious shop space, this one delivers versatility at an approachable price point.The standout feature? A spacious 31’ x 23’ detached garage/shop ready for vehicles, tools, storage, creative projects, or home-based work. It’s flexible space that adapts to your needs.Inside, key updates have already been completed so you can move in with confidence:Brand-new carpetWaterproof luxury vinyl plank flooringNew toiletsNew front doorGas water heaterWood accent details in two bedrooms for added warmth and characterWith much of the heavy lifting is done, it still leaving room for your personal touch with fresh paint or finishing details to truly make it your own.If you’re looking for practical space, thoughtful updates, and a property that offers both comfort and potential, 1672 Pritchett Pl is ready to welcome you home.
S Gateway, W on Harvey, N on 16th, E on Pritchett Pl
Dwelling Type: Residential
Subdivision: N/A
Year Built: 1987, County: US
S Gateway, W on Harvey, N on 16th, E on Pritchett Pl
Listing is courtesy of John L. Scott Eugene
Sign in to your account to continue