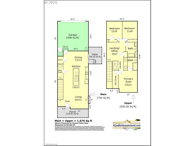
You won’t want to miss this well-designed Polygon 3 bedroom, 2.1 bath home in the popular Bethany Crossing neighborhood with thoughtful upgrades. Immediately welcomed by the covered front porch, it is the perfect space for morning coffee, reading a book, or just enjoying the neighborhood. Step into the spacious open-concept great room with tall ceilings and a cozy gas fireplace that sets the perfect mood for relaxing evenings or festive gatherings. The modern open kitchen features stainless steel appliances, granite countertops, and a huge 11x3.75’ island with seating for 4 at the bar. The step-in pantry is a favorite feature with plentiful storage, in addition to the adjacent storage closet. The kitchen seamlessly flows into the dining room with a slider to the private, fenced, low-maintenance sideyard. Upstairs the 10x7’ landing can flex as an office, artist’s loft, reading room, or exercise area. The primary ensuite provides a relaxing retreat with coved ceiling, a walk-in shower, dual vanities, tons of storage, and walk-in closet. With 2 additional bedrooms, a full hallway bathroom, laundry + a 2-car garage, this dialed-in home is move-in ready! The beautiful French door Samsung refrigerator with convenient flex drawer, and Energy Star LG washer & dryer are included! The well-maintained 2019 HVAC system features an air cleaner that recirculates the air every 5 minutes. This picture perfect home is conveniently located to Highway 26 and the dining, entertainment, and cultural opportunities proximity to Portland affords + the westside trail system, high tech industry, Nike & Columbia Sportswear. Parks, trails & Bethany Village Center are also right in the neighborhood, with all kinds of amenities from groceries, to the library, to great restaurants. Comfort, style, & convenience blend perfectly together in this must see home! It’s a perfect Portland home base for lock and go lifestyle, future rental, rightsize or first home! Zip zip!
NW Springville to NW Shackelford to NW Eleanor to NW Cosmos
Dwelling Type: Residential
Subdivision: Bethany Crossing
Year Built: 2019, County: US
NW Springville to NW Shackelford to NW Eleanor to NW Cosmos
Listing is courtesy of Premiere Property Group, LLC