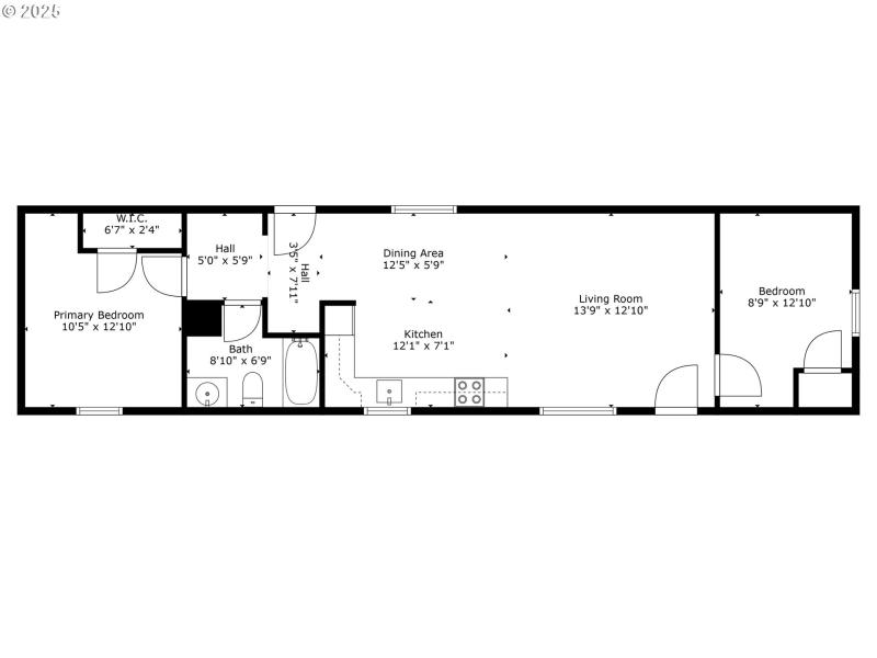
Located in a well-kept 55+ community with newly upgraded park infrastructure, this home benefits from all-new utilities. Peaceful creek-side setting and a friendly residential feel—close to town yet tucked away. This 2-bedrooms, 1-bath home offers an affordable and comfortable living setup with easy access to I-5 and just minutes from town. Featuring 746 sq ft and a modern floorplan with an open concept living room/kitchen area, and bedrooms located on either side of the home for privacy. This home feels brand new! Only lightly lived in, and recently updated with fresh interior and exterior paint, a new heat pump, and new front and back decks. The layout includes a dedicated laundry area, and all appliances are included, so you can move right in without the hassle. The covered carport with attached storage keeps your vehicle out of the elements and gives you extra room for tools or hobbies. Outside, the low-maintenance landscaping means less time doing yard work and more time doing whatever you want. Space rent is $650/month and includes water, sewer, and trash. This is a solid, easy-to-manage home in a quiet setting that keeps you close to everything without being in the middle of it all. Schedule your private tour today!
NE Stephens St, L on Newton Creek Rd, R on NE Parker Rd, R on Peggy Ave to Unit #6
Dwelling Type: Residential
Subdivision: N/A
Year Built: 2015, County: US
NE Stephens St, L on Newton Creek Rd, R on NE Parker Rd, R on Peggy Ave to Unit #6
Listing is courtesy of Different Better Real Estate