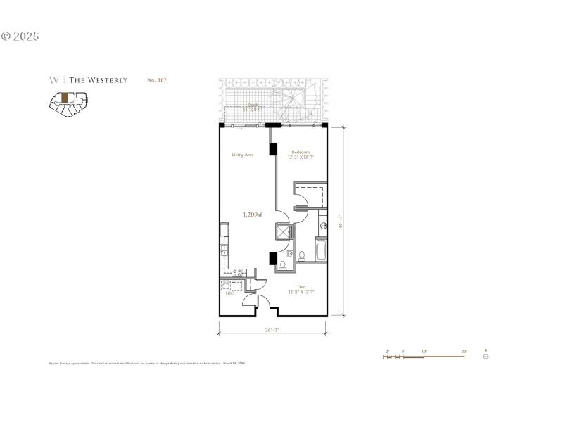
Exceptional courtyard home in the heart of NW Portland in the coveted Westerly. With over 250 sqft of outdoor space and direct access to the scenic private courtyard, this home offers unparalleled outdoor condo living. Meticulously maintained and updated with modern luxury finishes including walnut storage built-ins and paneling. The spacious floor plan features a generous primary suite, 2nd bedroom/den, 2 full bathrooms, large utility room, and a living space that opens to the expansive patio with views of the peaceful courtyard – the epitome of indoor outdoor living. The Westerly provides the perfect balance of city & neighborhood living with secure entry & parking, and full concierge services. Complete with one deeded parking space and storage unit. Enjoy living in one of Portland's most desired neighborhoods with amazing restaurants, coffee shops, public transportation, Forest Park, NW 23rd, and so much more just seconds away.
NW Westover Rd & NW 24th Pl
Dwelling Type: Residential
Subdivision: NOB HILL / WESTERLY
Year Built: 2007, County: US
NW Westover Rd & NW 24th Pl
Listing is courtesy of Sean Z Becker Real Estate