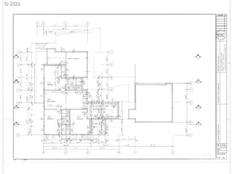
Build your custom home using a thoughtfully designed plan already permitted by the City of Mosier (Wasco County permits still required). The property includes architectural plans, engineering, geotech report, tree removal, and City of Mosier permits. Wasco County permits are still required, with an estimated cost of approximately $14,000. Designed with short- and long-term rental potential, the flexible layout offers strong income opportunity.The main-level entrance opens to a primary bedroom and 1.5 baths, positioned to capture views of the Columbia River and the Washington Syncline. The lower level features two additional bedrooms, each with an en suite bath and sitting area, plus the option to add a kitchenette per the approved wet bar plan. A walk-out basement leads to a lower patio, ideal for enjoying the views and creating a separate rental space. Architect Rick Potestio designed the home to reduce excavation costs, enhance views, and preserve the front oak tree.
Center St. to Fifth Ave. Lot on North side street
Dwelling Type: Land
Subdivision: TANAWASHEE
Year Built: N/A, County: US
Center St. to Fifth Ave. Lot on North side street
Listing is courtesy of Harcourts Real Estate Network Group
Sign in to your account to continue