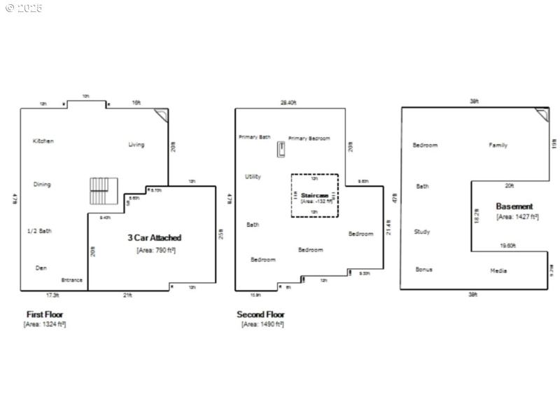
Stunning home in the heart of one of Scappoose's most desirable neighborhoods! Set in Columbia River View Estates, this 5 bedroom 3.5 bath home will amaze! With over 4200 sq. Feet, this home truly has it all. 4 bedrooms up, including a luxurious primary suite complete with vaulted ceilings, gas fireplace, walk in closet and jetted tub! 5th bedroom in daylight basement is perfect for guest room or multi-generational living. Gorgeous, gourmet kitchen, with granite counters, island, gas range, and pantry. The kitchen opens up into the light and bright living room, with gas fireplace and slider opening onto the upper deck with beautiful views of trees, Veterans Park, and ball fields. Main floor formal dining room with hardwood floors and classic wainscotting. 2 separate offices - one on the main floor with French doors, the second on the lower level. Downstairs family room is as good as good as it gets with gas fireplace, slider to second deck, and a bar with built in dishwasher, sink and refrigerator. Movie nights will better than ever in the separate family media room! Lower lever storage rooms are perfect flex space, and could be used as a hobby room, or additional office/work area. The grounds are an oasis, with fenced back yard, easy care landscaping, underground sprinkler, swimming pool, and greenspace/park views. Oversized, temperature controlled, 3 car garage with mini split for heating and cooling. So many updates, including new roof and gutters, newer furnace, AC, and newer exterior paint. This home truly has it all, this is a must see!
JP West to Maria, N to Felisha Way
Dwelling Type: Residential
Subdivision: Columbia River View Estates
Year Built: 2003, County: US
JP West to Maria, N to Felisha Way
Listing is courtesy of John L. Scott