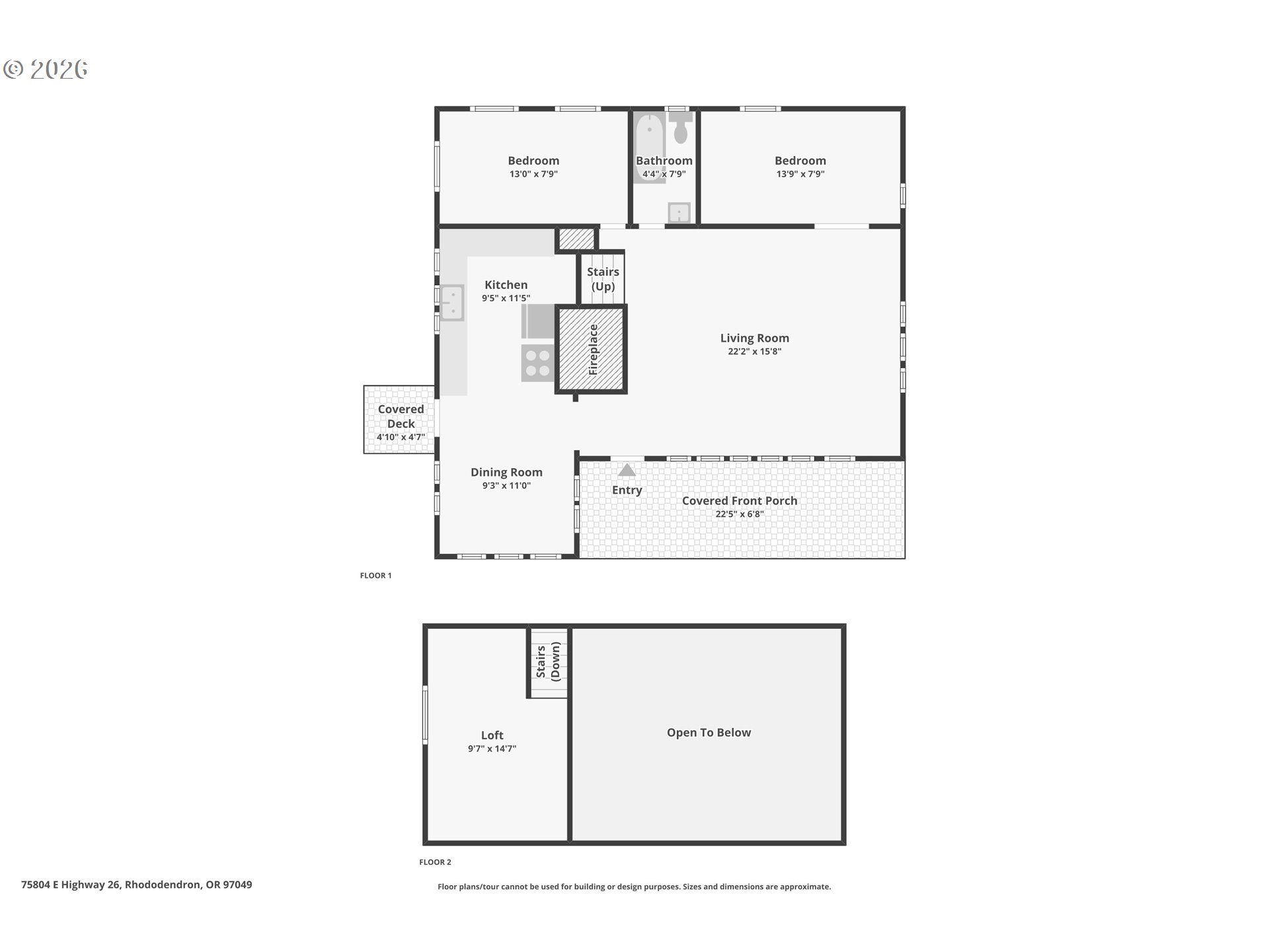
Where the River Sings and History Welcomes You Home! There are places you visit, and then there are places that quietly claim a piece of your soul. Tucked above the shimmering Zigzag River in the heart of Mt. Hood National Forest, this home is undeniably the latter. This rare and enchanting 1940s historic cabin is now available for sale, offering a once-in-a-generation opportunity to own a genuine mountain retreat steeped in character and perfectly positioned for year-round adventure. With two bedrooms, one "secret" bathroom, and 1,148 square feet of warmth and wonder, this is not just a home — it is a feeling. From the moment you turn into the circular driveway, the outside world begins to fade. The air is clean, cool, and carries with it the unmistakable scent of cedar and pine. And then you hear it — the gentle, constant melody of the Zigzag River flowing just steps from your door. Walking up to the porch, you are immediately transported to another era — one built on craftsmanship, simplicity, and an honest connection to the land. The original hardwood floors stretch beneath your feet, their patina telling the story of decades of mountain living. Beautifully crafted paned windows line the walls, each one framing a different portrait of the surrounding forest. And overhead, soaring cathedral cedar ceilings rise to create a sense of grandeur that feels both majestic and deeply intimate. But the true showstopper waits at the center of the great room. A custom-built, floor-to-ceiling rock fireplace anchors the entire space with undeniable presence. On the coldest winter nights, it transforms the great room into the coziest place on the mountain. Location is everything! Government camp and Mt Hood slopes are only a short drive up the HWY. Don't miss this vintage cabin charmer!
Hwy 26 East on left past Road 28 and before Road 29
Dwelling Type: Residential
Subdivision: Forest Service Cabins-Mt Hood
Year Built: 1940, County: US
Hwy 26 East on left past Road 28 and before Road 29
Listing is courtesy of Redfin
Sign in to your account to continue