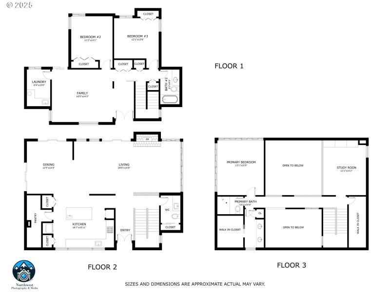
Architect-Designed Custom Home located in the vibrant Shasta loop neighborhood, this home is the perfect balance of elegance, comfort, and natural beauty. This stunning home combines architecture with serene, forested surroundings. Featuring soaring ceilings, dynamic windows, skylights, and multiple fireplaces, this residence offers warmth, natural light, and timeless design. The main level welcomes you with a grand entry, hardwood floors, and an open concept. The kitchen includes hardwood floors, a breakfast bar, oak cabinetry, large pantry and skylights that fill the space with light. A loft-style office and hallway overlook the living room, adding architectural depth and visual appeal. The primary suite has plenty of light and features a walk-in closet, while the lower level includes two additional bedrooms and a spacious family room. Enjoy outdoor living on the multi-level hardwood decks, perfect for hosting or simply relaxing in your private, tree-lined retreat.Located in the vibrant Spring Boulevard neighborhood, this home is the perfect balance of elegance, comfort, and natural beauty.
Agate to vine maple
Dwelling Type: Residential
Subdivision: N/A
Year Built: 1975, County: US
Agate to vine maple
Listing is courtesy of Hybrid Real Estate