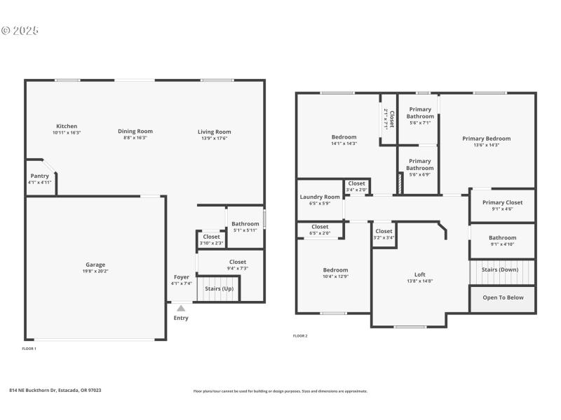
Beautifully upgraded, "better-than-new" two-story home in the sought-after Faraday Hills community of Estacada! Situated on a corner lot, this 3-bedroom + loft home with 2.5 bathrooms was built in 2022 with many upgrades throughout. Featuring luxury quartz countertops, upgraded flooring, soft-close cabinets, ceiling fans, farm sink & more. The home has fresh NEW interior paint throughout. The fully fenced yard offers plenty of space to relax or entertain, complete with an added 10'x10' covered back patio and raised garden beds. Stay cool with added air conditioning and $27K solar panels for electric efficiency and big savings! Conveniently located just 6 minutes from restaurants & shopping in downtown Estacada and 45 minutes to Portland. The nearby Clackamas River offers water sports + fun & beautiful views. Rural vibes with suburban conveniences-this home puts the best of the Pacific Northwest within easy reach!
Eagle Creek RD to Duus to Sweetwater to Buckthorn.
Dwelling Type: Residential
Subdivision: FARADAY HILLS
Year Built: 2022, County: US
Eagle Creek RD to Duus to Sweetwater to Buckthorn.
Listing is courtesy of The Agency Portland