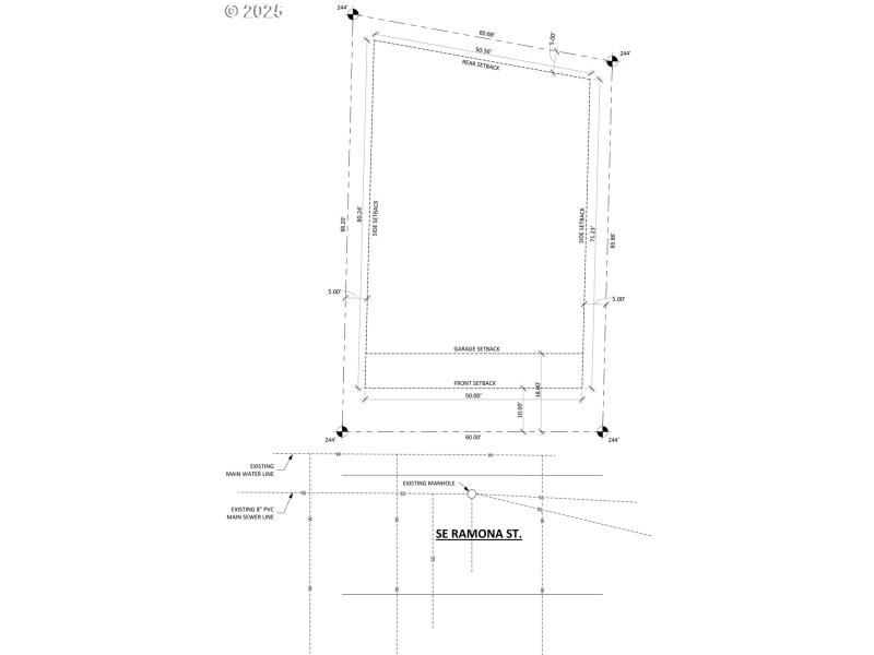
Raw vacant land located at 13851 SE Ramona St. Flat buildable lot in SE Portland, ideally located adjacent to the Springwater Corridor walking trail. This vacant parcel is zoned R5 with versatile residential development options—single-family, multifamily, or more (buyer to verify). A site plan is included in the images, as well as a few visual ideas of buildings that would fit on site. Don’t miss this opportunity in a rapidly developing area.
N on 136th, E on Ramona, Property to the N
Dwelling Type: Land
Subdivision: N/A
Year Built: N/A, County: US
N on 136th, E on Ramona, Property to the N
Listing is courtesy of Real Broker
Sign in to your account to continue