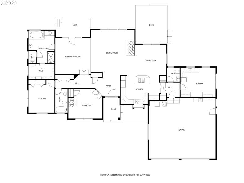
An exceptional opportunity to own a quality home in Gearhart with this exquisite single-level home in Shamrock Pines, positioned above Neacoxie Creek. This inviting home offers vaulted ceilings, rich wood flooring and tall windows that fill the home with natural light. The kitchen features a central cooking island with a built-in gas cooktop, a pantry, and a charming bay window overlooking the serene landscape. The primary suite includes a jetted tub, walk-in shower, lavatory, walk in closet and private deck access where you can unwind while listening to the gentle sounds of the creek. A versatile third bedroom with a cozy fireplace and French doors, making it a great option for a den, guest space, or creative retreat. The spacious laundry/utility room provides exceptional functionality for everyday living.Outside you’ll enjoy lush, mature landscaping with trees and shrubs, a tranquil koi pond, and a second backyard deck that invites morning coffee or evening gatherings with friends. Additional highlights include a covered front porch, central vacuum, oversized garage with extra tall doors. Located near the end of the community and across from a Butterfly Reserve, this home offers the privacy and quiet you’ve been seeking. A serene, comfortable retreat that captures the essence of relaxed beach living.
N on Hwy 101. Left on Shamrock Dr. Right on Pine Ridge. Left on Pine Ct to home on Left.
Dwelling Type: Residential
Subdivision: N/A
Year Built: 2000, County: US
N on Hwy 101. Left on Shamrock Dr. Right on Pine Ridge. Left on Pine Ct to home on Left.
Listing is courtesy of SALTAIRE Coastal Homes