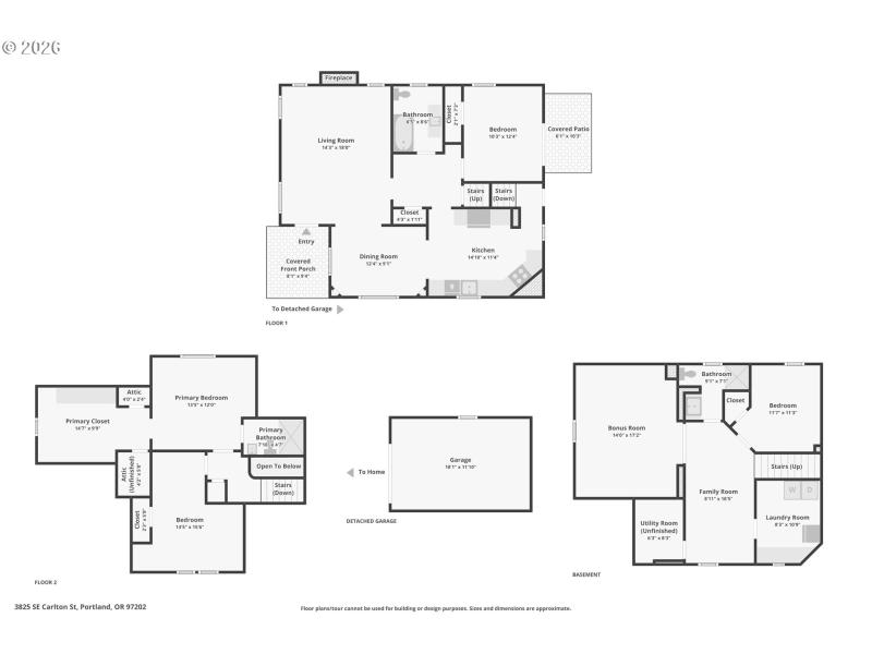
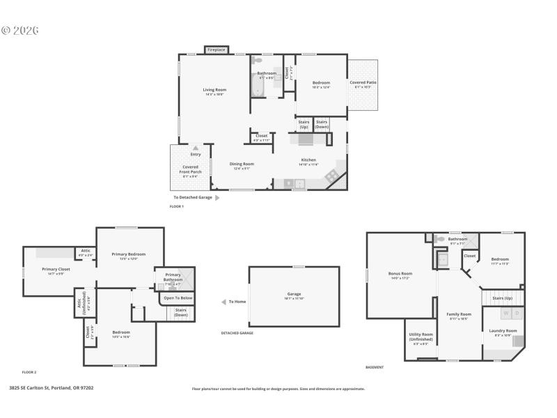
Modernized Eastmoreland Sanctuary: 2020 Full Reno, Chef’s Kitchen & Resort Grounds Experience a rare blend of historic Eastmoreland charm and a private resort-like retreat blocks from local shops and dining. Extensive renovation completed in 2020, this home features entirely modern systems—plumbing, electrical, HVAC, roof, and windows—seamlessly paired with timeless character. The layout offers effortless main-level living with a spacious living room, full bath, and versatile bedroom/office. A chef’s kitchen anchors the home with premium Bertazzoni and Jenn-Air appliances and custom cabinetry. Upstairs features a second guest bedroom and a primary suite with a modern ensuite. The finished lower level (rare 7' ceilings/dry design) provides a 4th bedroom, full bath, laundry, and flexible media or fitness space. The property transforms into a city escape with a low-maintenance garden anchored by two-tier waterfalls. A spectacular covered outdoor living area features a stone fireplace and built-in BBQ for year-round enjoyment without the upkeep of a lawn. Moments from Berkeley Park, tennis courts, and top-rated schools, this home offers unmatched quality and a daily experience of ease. [Home Energy Score = 3. HES Report at https://rpt.greenbuildingregistry.com/hes/OR10148152]
Cesar Chavez south to Carlton.
Dwelling Type: Residential
Subdivision: N/A
Year Built: 1927, County: US
Cesar Chavez south to Carlton.
Listing is courtesy of Redfin
Sign in to your account to continue