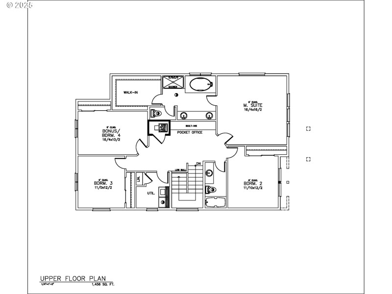
See Our Team About Our Closing Cost and/or Rate Buydown Opportunity! This farmhouse style home features great spaces for living and entertaining! The kitchen features a sink with a window view, tons of cabinet storage, huge island, and walk-in pantry. The large great room and adjacent dining keeps everyone connected. Retreat to the upper level with 3 secondary bedrooms and an expansive primary suite. This home is built to the Earth Advantage standard for performance and efficiency and features many green features as standard. [Home Energy Score = 9. HES Report at https://rpt.greenbuildingregistry.com/hes/OR10243206 [Home Energy Score = 9. HES Report at https://rpt.greenbuildingregistry.com/hes/OR10243206]
Barlow X SE 83rd
Dwelling Type: Residential
Subdivision: REEDS CROSSING
Year Built: 2025, County: US
Barlow X SE 83rd
Listing is courtesy of Stone Bridge Realty, Inc
Sign in to your account to continue