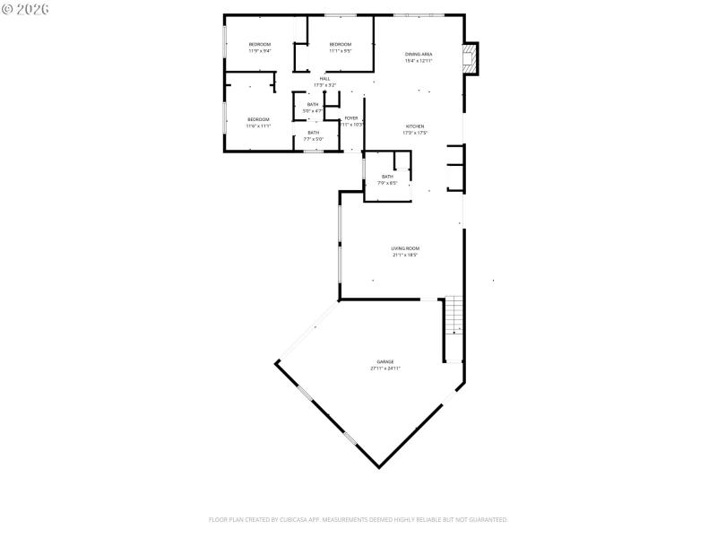
Welcome home to this beautifully updated 4-bedroom, 2.1-bathroom residence at 753 64th St in the friendly Thurston neighborhood of Springfield, Oregon. Boasting 2,216 square feet, this well-maintained home sits at the end of a quiet cul-de-sac, offering privacy and a peaceful setting ideal for families. Built in 1977 and thoughtfully updated throughout, it presents a clean, bright, and move-in ready interior. The spacious kitchen features tile flooring, ample cabinetry, stainless steel appliances, and a convenient pantry. It flows seamlessly in an open concept to the living room and family room with durable laminate flooring, large windows that flood the space with natural light, recessed lighting, and a cozy electric fireplace insert, creating the perfect setting for daily living and entertaining. Upstairs, the primary master suite is the only room on the upper level, creating its own private little retreat with vaulted ceilings, a ceiling fan, luxurious tile flooring, a walk-in shower, and a relaxing soak tub. The three additional bedrooms are located on the main level and provide flexibility for family, guests, or a home office.Outside, enjoy the huge backyard with a covered back porch that is ideal for year-round outdoor entertaining, BBQs, morning coffee, or simply relaxing while watching the kids or pets play. Additional highlights include a large oversized 2-car garage plus convenient RV parking. Served by excellent Thurston schools and located just minutes from nearby parks, shopping, dining, and easy commutes via Highway 126 or I-5, this turn-key Thurston gem combines comfort, convenience, and a strong sense of community. Don’t miss your opportunity to make it yours—schedule a private showing today!
thurston rd to 64th left in culdesac
Dwelling Type: Residential
Subdivision: N/A
Year Built: 1977, County: US
thurston rd to 64th left in culdesac
Listing is courtesy of Tim Duncan Real Estate
Sign in to your account to continue