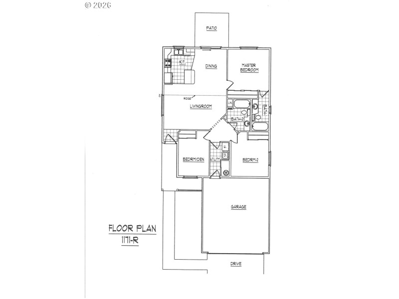
ON THE JOB SCHEDULE!! The estimated completion date for this 3 bedroom 2 bath home is May 11, 2026. This home will offer an open great room concept, a GE appliance package that will include a freestanding range, built in microwave, and dishwasher. There will be a CAT 5 Outlet in the living room. There is an attached garage, with a garage door opener and two remotes. The front yard will have sod and underground sprinklers. Seller concessions are available. Call your favorite agent to get more information!
HWY 730 to Powerline West on Riley AVE South on Blue Jay ST West on Michelle AVE
Dwelling Type: Residential
Subdivision: CHERYL'S PLACE - PHASE 3
Year Built: 2026, County: US
HWY 730 to Powerline West on Riley AVE South on Blue Jay ST West on Michelle AVE
Listing is courtesy of Andreason Realty, LLC
Sign in to your account to continue