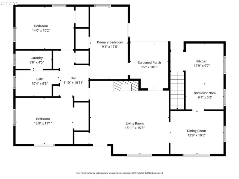
Tucked in the heart of Brush Prairie, this 3/4 acre property offers peaceful territorial views and a backdrop of open farmland with horses and cattle. Over 1,500 sq ft home with mid-century farmhouse vibes (coved ceilings and charming built-in woodwork), in need of some serious love—a full remodel or replacement, with utilities already in place. Features include a large two-bay shop, single car garage with carport, and a sunroom with separate entrance. Lots of storage, and each bedroom has a walk-in closet. All appliances and W/D stay. A rare chance to create something special in a truly sought-after setting. Cash or rehab financing likely needed. This property is ideal for investors or those looking to build new!
GPS Friendly-WA 503 North, East on 119th St, North on 152nd Ave. Home on right just before 159th St.
Dwelling Type: Residential
Subdivision: N/A
Year Built: 1954, County: US
GPS Friendly-WA 503 North, East on 119th St, North on 152nd Ave. Home on right just before 159th St.
Listing is courtesy of eXp Realty LLC
Sign in to your account to continue