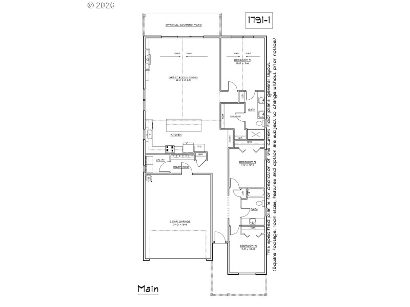
Brand new 3 bed, 2 bath single-level home with an open layout and vaulted main living area combining the kitchen, dining, and great room. The kitchen features a center island, two-tone cabinetry, and an upgraded appliance package. A sliding door leads to the covered patio and fully fenced, landscaped backyard.The primary suite offers a vaulted ceiling, walk-in closet, and private bath with double vanities. Just off the entry is a convenient drop zone leading to the laundry room, complete with washer and dryer. Thoughtfully designed new construction with modern finishes throughout.
Ellendale to Fir Villa, R on Academy, R on Barberry, L on Hankel
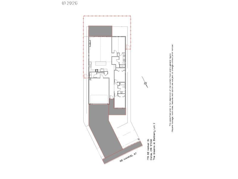
Dwelling Type: Residential
Subdivision: GLEANNS AT BARBERRY 12
Year Built: 2026, County: US
Ellendale to Fir Villa, R on Academy, R on Barberry, L on Hankel
Listing is courtesy of Premiere Property Group, LLC
Sign in to your account to continue