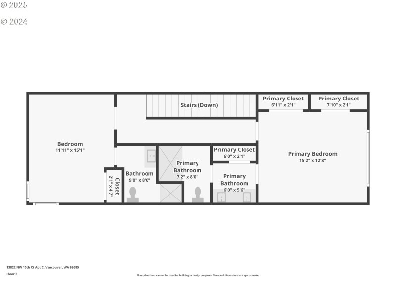
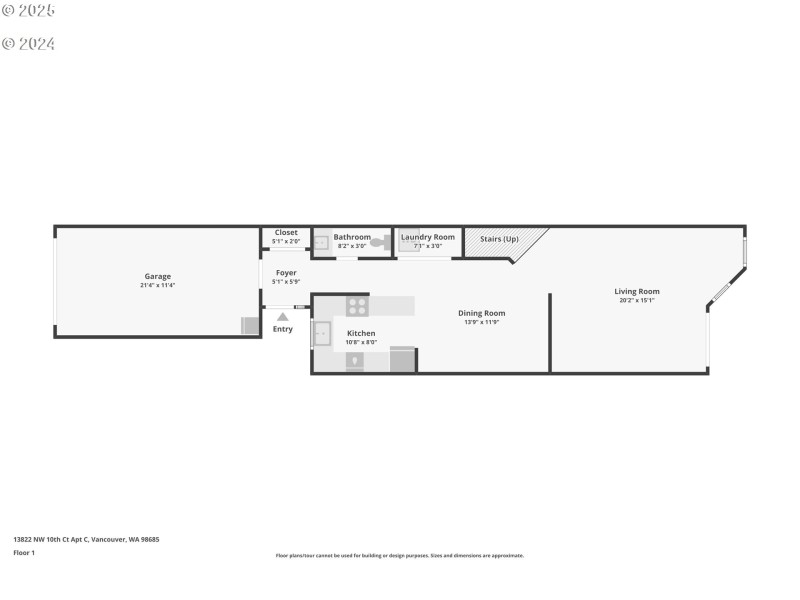
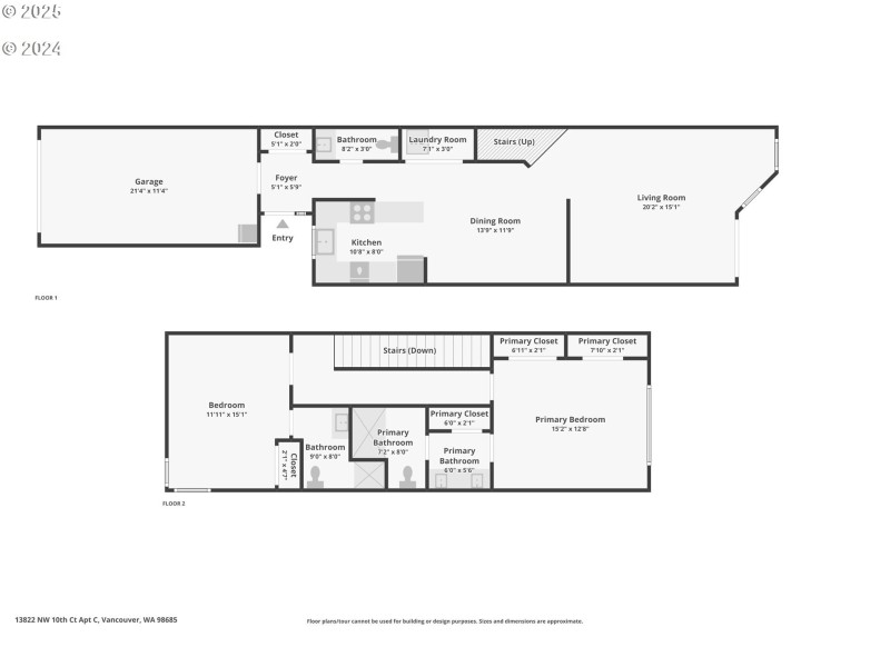
Good news for buyers! The HOA has approved new roofs, siding, exterior paint, and gutters for all units — a major value improvement.This well-maintained 2-bedroom, 2.1-bath condo in Edgetree Condominiums features an updated kitchen with quartz countertops, stainless steel appliances, and luxury vinyl flooring. The open-concept living and dining area leads to a private patio. Upstairs, both bedrooms include en-suite bathrooms, offering comfort and privacy.Additional highlights include in-unit laundry and an attached garage. Community amenities include a pool, clubhouse, tennis courts, and maintained green spaces. HOA dues cover water, sewer, landscaping, and exterior maintenance.Conveniently located in the Salmon Creek area near shopping, dining, and medical facilities.
34th St Exit, W on 139th St, Across from Skyview High School
Dwelling Type: Residential
Subdivision: N/A
Year Built: 1988, County: US
34th St Exit, W on 139th St, Across from Skyview High School
Listing is courtesy of Realty One Group Prestige
Sign in to your account to continue