Opportunity for buyers seeking value and upside. Please do not show with children present, as the home has several open junction boxes; exercise caution in the backyard and stay off the deck. Seller requests that all offers include signed disclosures and proof of funds. The property is being sold as-is, where-is, with the seller to make no repairs. The home is part of an estate and all offers are subject to executor approval. Buyer to perform all due diligence. There is no heat source in the main living area, with baseboard heat in the bedrooms. Seller will remove select personal items, with buyer responsible for any items remaining at closing. Back addition is believed to be unpermitted, as no records have been located with the City of Tigard or Washington County.
From Taylors Ferry, South on SW 80th, West on Chestnut to property.
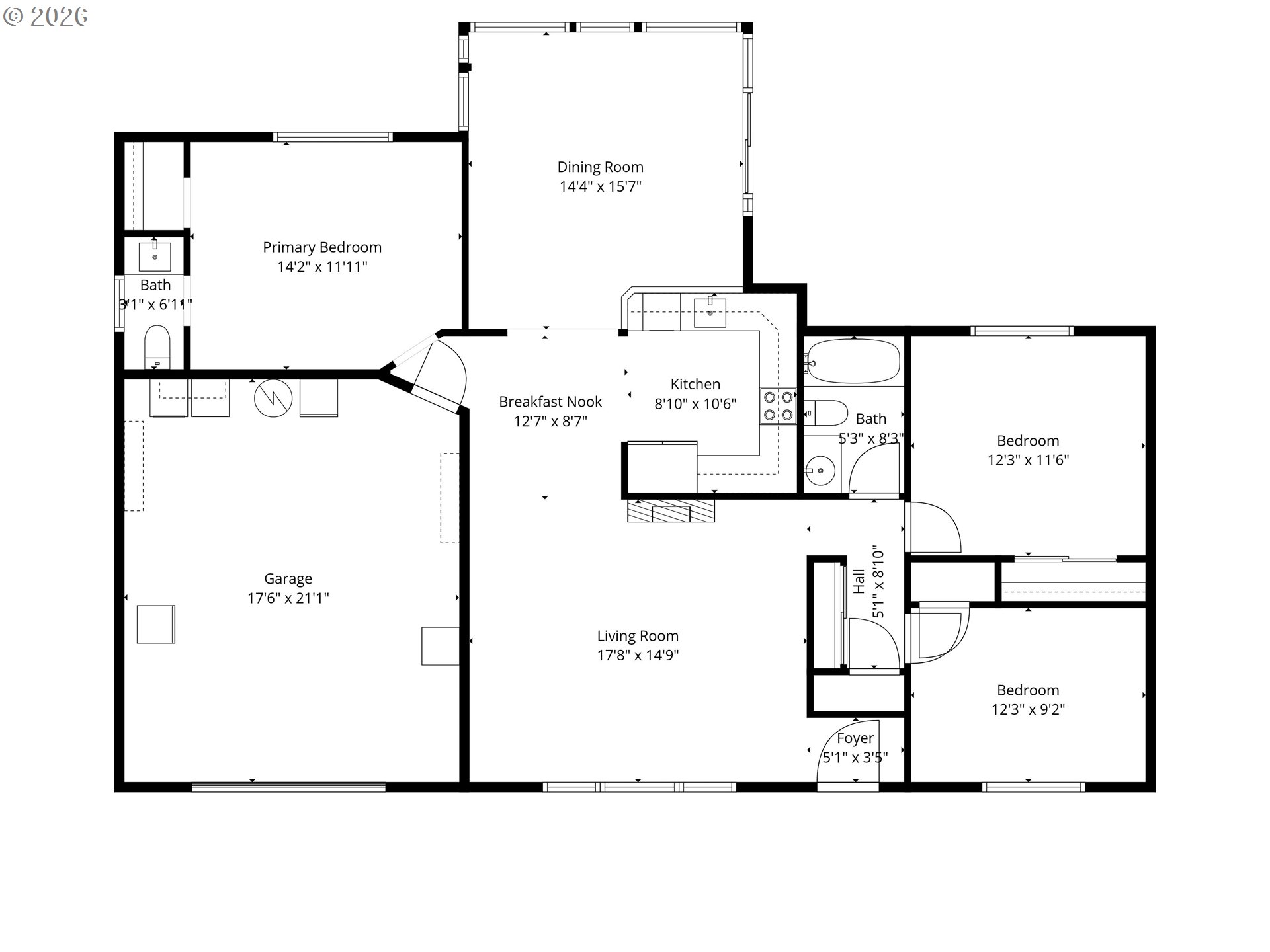
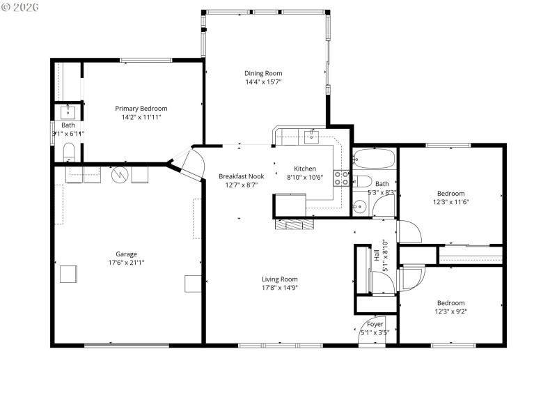
Dwelling Type: Residential
Subdivision: N/A
Year Built: 1985, County: US
From Taylors Ferry, South on SW 80th, West on Chestnut to property.
Listing is courtesy of John L. Scott
Sign in to your account to continue