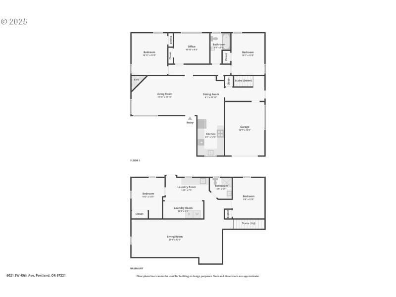
Offer received. Nestled in the heart of Southwest Portland’s beloved Hayhurst neighborhood, this inviting 5-bedroom, 2-bath home perfectly balances space, style, and easy living. With 2,064 square feet on a beautifully landscaped 0.22-acre lot, it’s the kind of place that feels instantly like home.Step inside to a sunlit living room with oak hardwood floors and a cozy wood-burning fireplace—an ideal setting for morning coffee or relaxed evenings with friends. The main level includes three comfortable bedrooms and a recently renovated full bathroom. The daylight lower level expands your options with a large living room, two additional bedrooms, a second recently renovated full bathroom, a spacious laundry area with built-in cabinetry and sink, and an exterior entrance for a possible ADU or private in-law suite. Recent updates mean you can move right in and enjoy: fresh interior paint, both bathrooms fully remodeled in 2025, a new water heater, new front porch, and a 95% AFUE furnace with air conditioning. A newer roof, electrical panel and new gutters add peace of mind. Full list of improvements available upon request. Step outside and savor the peaceful, fenced backyard surrounded by mature landscaping—complete with figs, raspberries and plenty of sunny gardening space. It’s the perfect spot for outdoor dinners, running through the sprinkler, or lazy summer afternoons. You’ll love being so close to Gabriel Park with its tennis and pickleball courts, two dog parks, playground, and scenic trails. Plus, you’re just minutes to the charming shops and cafés of Multnomah Village, Hillsdale, and Garden Home-with easy access to OHSU, Beaverton, and downtown Portland. This is more than a home-it’s a lifestyle. Friendly neighbors, great schools, and one of Portland’s best parks right out your front door. [Home Energy Score = 5. HES Report at https://rpt.greenbuildingregistry.com/hes/OR10242786]
SW Vermont to SW 45th
Dwelling Type: Residential
Subdivision: VERMONT HILLS / GABRIEL PARK
Year Built: 1952, County: US
SW Vermont to SW 45th
Listing is courtesy of The Agency Portland
Sign in to your account to continue