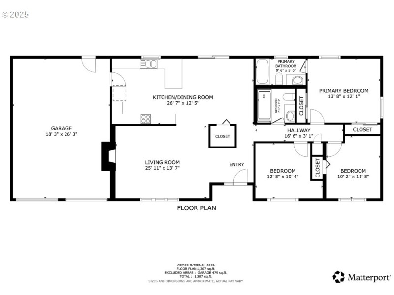
Welcome to 8911 SE Tenino Street—a thoughtfully upgraded single-level Mid Century Coastal style home nestled in one of Southeast Portland’s most evolving and connected neighborhoods. This 3-bedroom, 2-bathroom property sits on a beautifully maintained lot and offers the perfect balance of space, tranquility, and functionality. Extensively updated, the home features a new roof, insulation, siding, gutters, interior & exterior paint, and smart devices! Inside, enjoy gorgeous new flooring throughout, as well as New custom kitchen cabinetry, countertops, designer fixtures and ceiling fans, new appliances that elevate both function and design. The bright, open-concept layout offers a clean flow from living to kitchen & dining room out to the backyard. Outside, you’ll find a large shed, covered patio, and fully fenced backyard—ideal for gardening, dining al fresco, entertaining, or quiet moments outdoors. The attached over-sized garage provides bonus space for office, hobbies, toys, music, or art studio, while the extra-wide driveway with room for boat or RV adds even more flexibility. This home is located just minutes from the I-205 freeway and is part of one of Portland’s few neighborhoods with a MAX stop, offering rare transit accessibility. Just blocks away, Lents Park—one of the city’s largest—offers walking trails, soccer fields, a community garden, amazing restaurants and is home to the Portland Pickles baseball team. Lents is a neighborhood on the rise. Since 2000, the City of Portland has invested over $207 million into infrastructure, development, and livability improvements—making this not just a great place to live today, but a smart place to invest in for tomorrow. Whether you're a first-time buyer, a down-sizer, or simply seeking a well-located home with long-term upside, Tenino offers connection, comfort, and community—all in one of Portland’s fastest-growing pockets. Call your Realtor to schedule a tour and make an offer Today! [Home Energy Score = 4. HES Report at https://rpt.greenbuildingregistry.com/hes/OR10204748]
Johnson Creek, North on Fuller to SE 89th. R on Tenino.
Dwelling Type: Residential
Subdivision: N/A
Year Built: 1969, County: US
Johnson Creek, North on Fuller to SE 89th. R on Tenino.
Listing is courtesy of eXp Realty, LLC