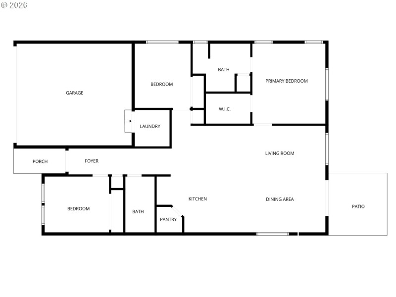
Custom Beautiful Modern home in Cedar Heights North Neighborhood Move in ready.. Open Floor plan with inviting living room with lots of Natural lighting, perfect for both relaxation and entertaining. Chef will love kitchen island w/generous counter space and pantry, soft close cabinets, quartz Counters & subway tile backsplash, stainless steel appliances. 3 bed 2 bath, luxurious Master bedroom, Tub surround and spacious closet. Latest In Material & Design, 2-Car Garage. Backyard Patio, plenty of space in yard ,sprinkler system in front, fully Fenced. Conveniently located, walking trails nearby, shopping within minutes. 1 of 8 homes to choose from all on same street with different colors/design and style, all other homes estimated to be completed in March/April. Come see today!
East on Eaton, South on Grace, West on SE 35th,N on SE 8th Ave W on SE 34th ST
Dwelling Type: Residential
Subdivision: N/A
Year Built: 2026, County: US
East on Eaton, South on Grace, West on SE 35th,N on SE 8th Ave W on SE 34th ST
Listing is courtesy of Keller Williams Realty
Sign in to your account to continue