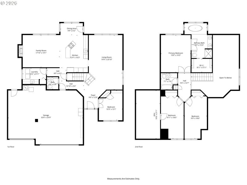
Offer Deadline 4/6 at 9pm.Gorgeous Views & Privacy in This Beautiful Sherwood Home! Offering 4 bedrooms or 3 bedrooms plus a main-level office, this sought-after home features a vaulted entry and living room filled with natural light. Enjoy a remodeled kitchen, fresh interior paint, brand-new carpet and flooring, and newer stainless steel appliances. The private primary suite offers beautiful views and a spa-like bathroom with a soaking tub. An extra large 3-car garage includes RV parking/hookup and an EV charger. Step outside to a spacious deck and stamped concrete patio—perfect for entertaining. Ideally located nearby to Snyder Park with soccer and baseball fields, basketball and tennis courts, and more. No HOA!
Sunset Blvd, South on Aldergrove,Left on Scott Ridge, house on left-Flaglot
Dwelling Type: Residential
Subdivision: N/A
Year Built: 1997, County: US
Sunset Blvd, South on Aldergrove,Left on Scott Ridge, house on left-Flaglot
Listing is courtesy of Premiere Property Group, LLC
Sign in to your account to continue