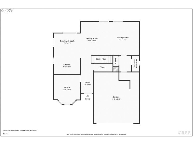
This clean and well-cared-for home is located in an area of newer homes. Some of the great features include a functional layout with spacious living areas, a bright kitchen with stainless appliances, granite counters and plenty of natural light throughout. The primary bedroom includes a private bathroom, huge walk-in closet and a private deck overlooking the back yard. Additional bedrooms are suitable for family or guests with its Jack & Jill bathroom style. Main level offers high ceilings, den/office and an open floorplan. Outside, enjoy the large lot bordered by greenspace and a yard ready for your touches. Just a short drive to downtown St. Helens and quick trip to Portland, this home combines rural comfort with convenient access to services.
Hwy 30 to Pittsburg Rd, R on Hankey, R on Elk Meadows, L on Valley View to home on right
Dwelling Type: Residential
Subdivision: N/A
Year Built: 2018, County: US
Hwy 30 to Pittsburg Rd, R on Hankey, R on Elk Meadows, L on Valley View to home on right
Listing is courtesy of RE/MAX Powerpros