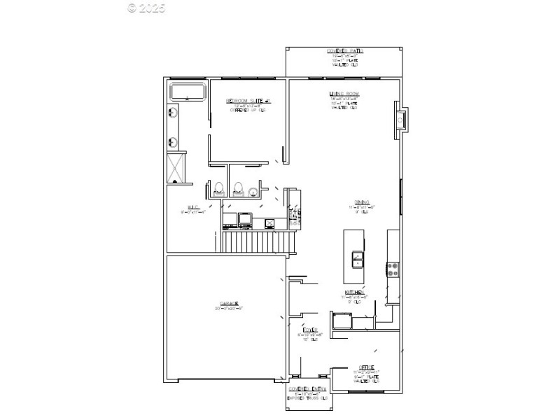
COMING LATE FALL 2025. Stunning New Construction in Beckwood by Icon Construction & Development!Experience exceptional design and livability in this beautiful two-story home located in Canby’s desirable Beckwood subdivision. Built by Icon Construction, this home features a sought-after primary suite on the main level, a flexible main-level den, and an upstairs loft—ideal for a second living area, playroom, or media space.With 3 bedrooms, 2.5 bathrooms, and a bright open-concept layout, this home offers quality craftsmanship, functional living, and timeless style.Get in early and make it yours! Buyers who go under contract early enough in the build process will have the opportunity to fully customize interior selections by working with our professional design team—choose your finishes, colors, and personal touches to create a home that’s uniquely yours.Located near paved logging trails, a spacious dog park, and pickleball courts, this home is perfectly positioned for both convenience and outdoor recreation. Estimated completion in late Fall 2025.Don’t miss your chance to build your dream home in Canby’s premier new community!
Territorial to Pine to 17th
Dwelling Type: Residential
Subdivision: N/A
Year Built: 2025, County: US
Territorial to Pine to 17th
Listing is courtesy of Handris Realty Co.