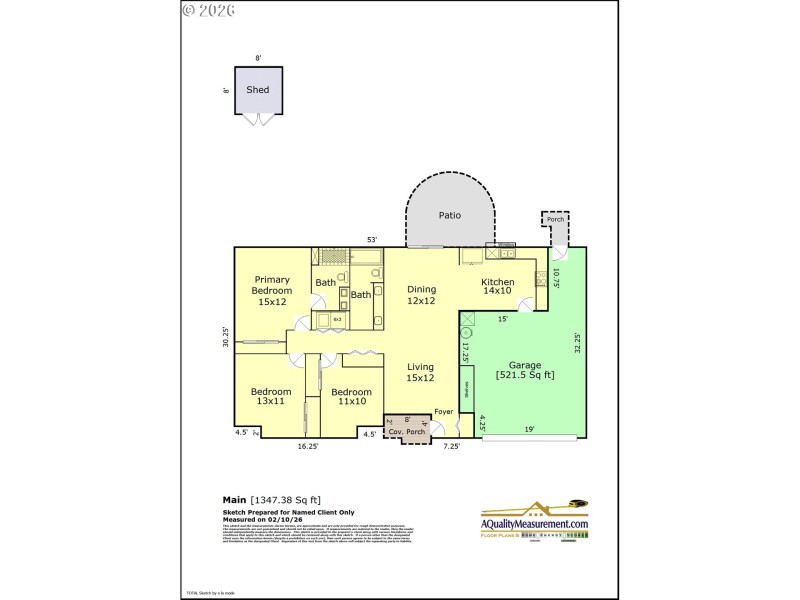
This charming 1-level home sits on a spacious, fully fenced corner lot in one of Beaverton’s best locations and a sought-after, established neighborhood. Inside, you’ll find a bright, open living and dining area featuring brand-new LVT wood flooring throughout. The classic updated, spacious kitchen is perfect for the home chef, while the newly refreshed bathrooms offer a beautiful, light, modern feel. With RV parking, an oversized two-car garage, no HOA, and picturesque tree-lined streets, this home offers the perfect blend of comfort and convenience just minutes from parks, trails, shopping, dining, and entertainment. Move-in ready with room to add your personal style, this is the one you’ve been waiting to call home.
SW Sorrento Rd to Hanson Rd
Dwelling Type: Residential
Subdivision: N/A
Year Built: 1981, County: US
SW Sorrento Rd to Hanson Rd
Listing is courtesy of Cascade Hasson Sotheby's International Realty
Sign in to your account to continue