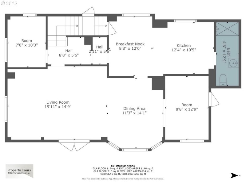
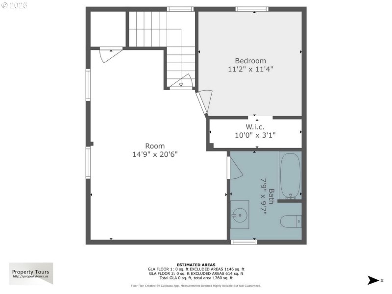
**Price Reduced! Exceptional opportunity in Montavilla with two parcels on a prime corner lot and dual access points. CM-2 zoning allows mixed-use development including residential units, a 4-story apartment building/complex, or retail/residential combinations, ideal for developers or owner/users. The main home, built in 1937 with a 1952 garage addition (936 SF), has been used as office space, a children’s daycare, a carpentry shop, and most recently an automotive repair shop; the home currently does not include a kitchen. The modular building is approximately 800 SF with two restrooms, historically part of the daycare operation. Seller states parking for 20+ vehicles. With strategic location near main roads and freeways, this property offers significant growth and expansion potential. Seller is open to partial seller carry financing for up to five years and longer-term financing if needed. Don’t miss this rare Montavilla opportunity!
SE 86th and SE Stark.
Dwelling Type: CommercialSale
Subdivision: N/A
Year Built: 1937, County: US
SE 86th and SE Stark.
Listing is courtesy of Rose Country Realty