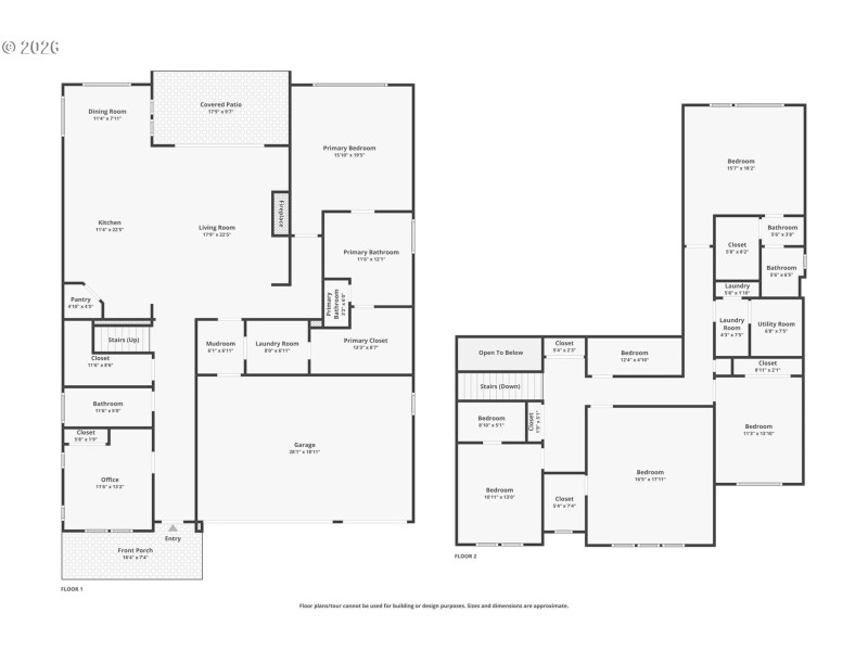
Stunning custom new build in NW Portland/Bethany! 3,679 Sq Ft 5 bedroom + den & 4 full bathrooms. Luxurious primary suite on main with heated tile floors, soaking tub, walk-in shower and spacious walk-in closet with access to laundry room. True Great room floor plan with gas fireplace, high ceilings, floating shelves and full wall slider to private backyard. Gourmet kitchen featuring Thermador appliances, custom tile, waterfall island & walk-in pantry. Sunny dining room with shiplap accent wall. The upper level features a second bedroom suite plus 3 spacious bedrooms, bonus room and second laundry room! Soaring ceilings, custom cabinetry & premium finishes throughout. Fully fenced level yard, tongue and groove covered back patio, 3-car epoxy-coated garage, tankless water heater, high-efficiency two-zone HVAC, central A/C. WA County
NW 174th & NW Lonerock
Dwelling Type: Residential
Subdivision: Greenlefe / Westview / Bethany
Year Built: 2026, County: US
NW 174th & NW Lonerock
Listing is courtesy of The Agency Portland
Sign in to your account to continue