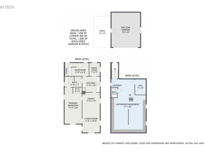
Endless possibilities await at this 1912 N Portland Farmhouse on a fabulous 8300 sqft lot. Situated behind a street line of Japanese plum trees, the beautifully landscaped gardens provide a private, serene and sensational park-like setting. The property offers a 2-car garage and a covered, zen patio surrounded by grape leaves. Inside, original vintage charm awaits. At some point in its 113-year life, what was once originally a 2-bedroom main floor became a single 11 X 20 bedroom. Bring your vision and return to the original 2-bedroom layout with what is thought to be fir floors underneath the carpet. An 800 sqft basement with a full bathroom and private entrance is the cherry on top. Notable high ceilings, sweet breakfast nook, vinyl windows, new Electrical Panel, Furnace and AC in 2021 and new Water Heater in 2024. Also a Development Opportunity with a 83 X 100 Lot and 3 underlying lot lines. Possible Cottage Cluster or keep the existing home and develop two 25 X 100 Lots. Multiple options for this fabulous property!
N Lombard to N Delaware, West on N Watts
Dwelling Type: Residential
Subdivision: N/A
Year Built: 1912, County: US
N Lombard to N Delaware, West on N Watts
Listing is courtesy of John L. Scott Portland Central