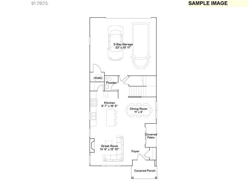
The newest floorplan at Reeds Crossing in South Hillsboro! The Palmer home boasts the largest bedrooms of any or our homes at Reeds Crossing. The primary bedroom is set away from the two secondary bedrooms, all on the second floor. The main floor features an open concept with the quartz kitchen island and spacious dining room. The 2 car garage is oversized. With under stair closet in addition to the coat closet at the entry, and a large laundry room, this home has all the storage you need. Renderings and sample photos are artist conceptions only. Photos are of similar or model home so features and finishes will vary. Taxes not yet assessed. Home includes a refrigerator, washer/dryer, central air, and window blinds! Come see this new floorplan by Lennar. Palmer Floor Plan, Homesite # 1454, Move-In-ready! *Below-market rate incentives available when financing with preferred lender.* [Home Energy Score = 10. HES Report at https://rpt.greenbuildingregistry.com/hes/OR10234494]
Blanton to right on 83rd to left on Quincy. Model home on the left
Dwelling Type: Residential
Subdivision: REED'S CROSSING
Year Built: 2025, County: US
Blanton to right on 83rd to left on Quincy. Model home on the left
Listing is courtesy of Lennar Sales Corp