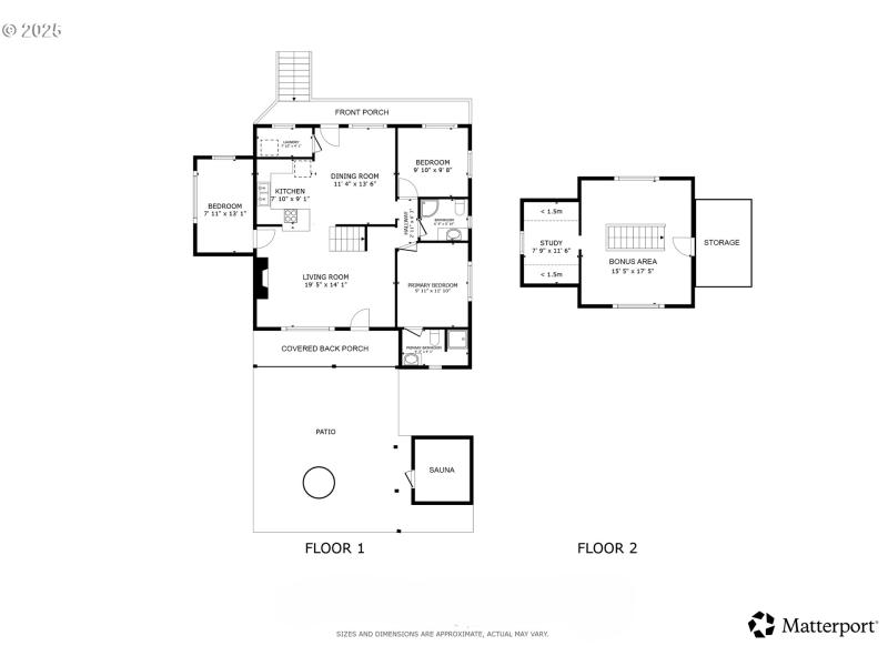
Discover a rare piece of Mt. Hood history in this 1930’s Steiner-built cabin, beautifully updated for modern comfort while embracing its rustic origins. Situated on a wooded .23-acre lot between the Zig Zag River and Still Creek, this fully-furnished 4 bedroom retreat delivers a timeless mountain experience in a peaceful, forested setting. Inside, the striking stone fireplace and original hardwood floors anchor the cabin's rustic character, with one bedroom featuring authentic log wall finishes in iconic Steiner fashion. The main level offers three bedrooms and two full baths, while upstairs adds a sleeping loft (4th bedroom) and cozy office. Kitchen and bath updates complement the warm wood paneling for a true mountain lodge feel. Outdoor living is designed for relaxation and connection to nature. The back deck features a sauna, fire pit, and cold soak tub, accompanied by the soothing sounds of the nearby river. Walking paths, artisan details, and whimsical handcrafted gnome doors—created by the originator of the neighborhood’s beloved “Gnome Way”—are tucked throughout the property, adding a playful and memorable touch. Exterior updates include durable metal roof and siding and composite decking, well-suited for a mountain environment. A nearby footbridge provides easy access to Rhododendron shops and eateries, with skiing, hiking, fishing, and Mt. Hood recreation just minutes away. A unique opportunity for a private mountain retreat or distinctive vacation rental. Located on owned land, NOT Forest Service Leased Property.
Hwy 26 to Still Creek Rd, Left (East) on Rd 10, Right (South) on Marion (Rd, maps as Drive)
Dwelling Type: Residential
Subdivision: Rhododendron
Year Built: 1930, County: US
Hwy 26 to Still Creek Rd, Left (East) on Rd 10, Right (South) on Marion (Rd, maps as Drive)
Listing is courtesy of Engel & Volkers West Portland
Sign in to your account to continue