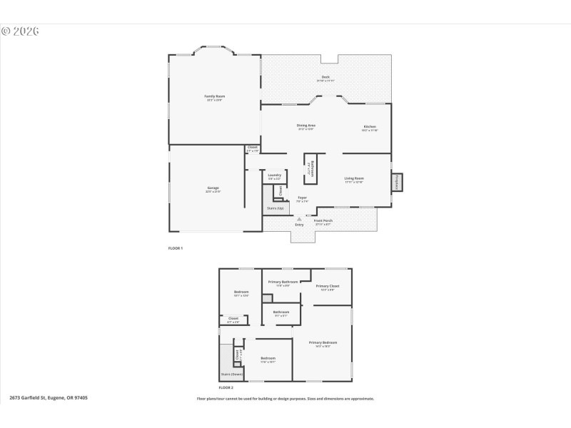
Wonderful Southwest Hills home tucked away on a peaceful cul-de-sac, offering space, comfort, and thoughtful updates throughout. Step inside to a spacious floor plan featuring a huge vaulted family room filled with natural light from expansive windows and a charming built-in window seat. A separate living room with a cozy wood-burning fireplace provides the perfect second gathering space. The large dining area includes additional flex space with engineered hardwood flooring and direct access to the expansive back deck — ideal for entertaining or indoor-outdoor living. The kitchen offers ample storage, stainless steel appliances, and a functional layout for everyday living. The oversized primary suite features a walk-in closet and an updated ensuite bath with tiled walk-in shower and dual vanity. Enjoy quiet mornings on the covered front porch or host summer gatherings in the spacious backyard with mature trees. Major system upgrades include a new furnace, new heat pump for efficient forced air heating and cooling, new water heater, new kitchen appliances, interior and exterior paint, cultured marble countertops, and comfort-height toilets. Extra garage storage keeps your parking space clutter-free. Conveniently located near schools, shopping, and services. Schedule your tour today!
W on W 28th, N on Garfield, right into cut-de-sac
Dwelling Type: Residential
Subdivision: N/A
Year Built: 1987, County: US
W on W 28th, N on Garfield, right into cut-de-sac
Listing is courtesy of Triple Oaks Realty LLC
Sign in to your account to continue