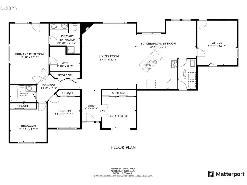
Beautiful 4 bedroom, 2 bath contemporary home on just over an acre. The property borders Rock Creek which offers a picturesque setting for private enjoyment. The expansive park-like yard has underground sprinklers, patio area, mature trees, and a large deer-fenced garden space. The custom interior boasts granite countertops, stainless steel appliances, eating bar, vaulted ceilings, and gas fireplace. Master bedroom with ensuite and walk-in closet. Extra bonus room off of the dining area could be used as a craft room, exercise space, office, or whatever you heart desires. 3 car attached garage. Newer 50 yr roof. Home is located on a gated lane for privacy and security.
From Salmon River Hwy, south on Firehall Rd, East on Andy Riggs, North on Buffalo Ln
Dwelling Type: Residential
Subdivision: N/A
Year Built: 2006, County: US
From Salmon River Hwy, south on Firehall Rd, East on Andy Riggs, North on Buffalo Ln
Listing is courtesy of Bella Casa Real Estate Group