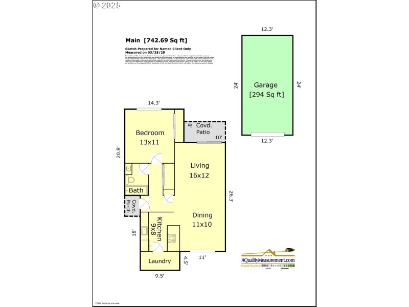
This is a fantastic condo!! Welcome to this single level open floor plan, 1-bedroom, 1-bathroom condo, perfectly located within a desirable community. The living room opens to green space, ideal for relaxing out on your patio with morning coffee. The kitchen features quartz countertops and stainless-steel appliances with an eat in bar. The bedroom offers ample space, with plenty of storage throughout. Enjoy the convenience of in-unit laundry and a private garage. This condo also provides access to a vibrant community with fantastic amenities including a party room with pool tables, a full kitchen and beautifully maintained green spaces. New water heater, newer appliances and electrical panel. With its prime location, bus access and conveniences close by, it's a must see!!
Division to 138th left into complex, Park on far end lot and unit is to the right, #93
Dwelling Type: Residential
Subdivision: COPPERFIELD CONDOMINIUM
Year Built: 1977, County: US
Division to 138th left into complex, Park on far end lot and unit is to the right, #93
Listing is courtesy of Cascade Hasson Sotheby's International Realty